Vuokrataan toimistotilat - Espoo
Tinurinkuja 4, Leppävaara, 02650 Espoo #10838789
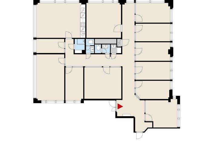
Tarjolla siisti toisen kerroksen toimistotila hyvin hoidetusta kiinteistöstä, joka sijaitsee erinomaisella paikalla hyvien liikenneyhteyksien varrella Espoon Leppävaarassa, Läkkitorin laidalla. Kauppakeskus Galleria ja sen monipuoliset palvelut ovat aivan vieressä. Pysäköintipaikkoja on saatavilla viereisestä pysäköintihallista. Kiinteistössä toimii myös ruokakauppa ja lounasravintola.
Ota yhteyttä ja kysy lisää!
Tiesitkö, että tilanhakijalle palvelumme on maksuton?
www.blanctoimitilat.fi
Joonas Nuutinen
Toimitila-asiantuntija
+358 40 754 5408
joonas.nuutinen@blanckiinteisto.com
Osoite
Tinurinkuja 4, 02650 Espoo
Tilatyyppi
Toimistotilaa
224 m2
Vapautuu
Heti vapaa
Kerros
2
Ota yhteyttä
Pyydä lisätietoa
