Vuokrataan toimistotilat - Espoo
Ahventie 4, Haukilahti, 02170 Espoo #10838787
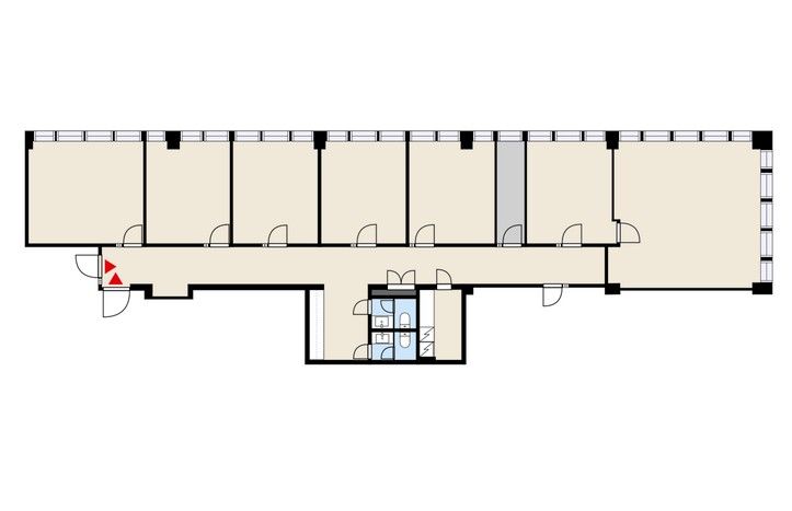
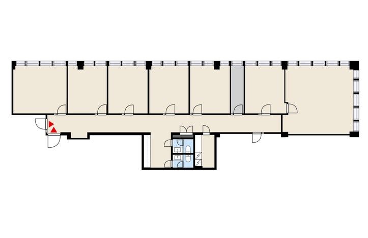
Tämä toimitila tarjoaa runsaasti valoa ja toimivia tilaratkaisuja. Kohteessa on kattava palvelukokonaisuus vuokralaisille, mikä tekee siitä erinomaisen valinnan yritykselle, joka arvostaa toimivaa työympäristöä ja palveluita. Ahti Business Park on vihreämpi valinta yrityksellesi, ja sen sijainti aivan Länsiväylän vieressä, vain 15 minuutin päässä Helsingistä, takaa erinomaiset kulkuyhteydet.
Kiinteistön vuokralaisille on tarjolla runsaasti pysäköintipaikkoja sekä ulkokannella että autohallissa. Vierailijat voivat pysäköidä maksutta ulkokannelle ilmoittaessaan autonsa rekisterinumeron aulapalveluun.
Ota yhteyttä ja kysy lisää!
Tiesitkö, että tilanhakijalle palvelumme on maksuton?
www.blanctoimitilat.fi
Joonas Nuutinen
Toimitila-asiantuntija
+358 40 754 5408
joonas.nuutinen@blanckiinteisto.com
