Vuokrataan toimistotilat - Espoo
Tinurinkuja 4, Leppävaara, 02650 Espoo #10838785
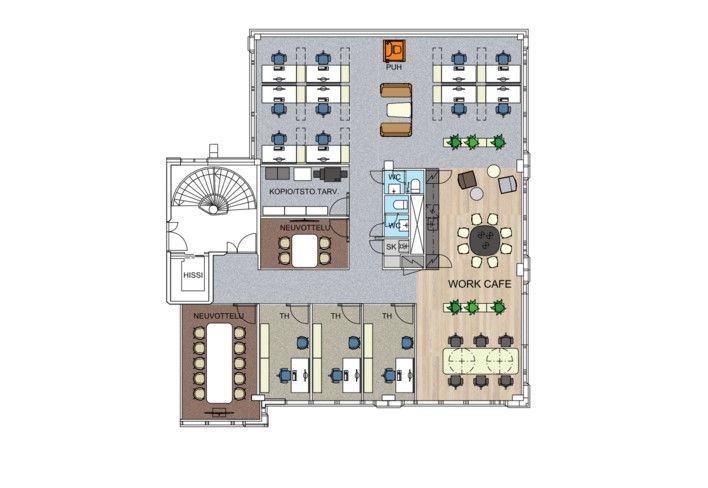
Tarjolla kolmannen kerroksen toimistotila hyvin hoidetusta kiinteistöstä erinomaisella sijainnilla, hyvien liikenneyhteyksien varrella Espoon Leppävaarassa, Läkkitorin laidalla. Toimitila voidaan vuokrata kokonaisuudessaan tai jakaa kahdelle käyttäjälle tarpeen mukaan. Tilat ovat jaettavissa/laajennettavissa 295 m² tai 228 m² kokonaisuuksiksi. Tilassa on ilmastointi, ja kiinteistön yhteydessä toimivat lounasravintola sekä ruokakauppa. Pysäköintipaikkoja on saatavilla viereisestä pysäköintihallista.
Ota yhteyttä ja kysy lisää!
Tiesitkö, että tilanhakijalle palvelumme on maksuton?
www.blanctoimitilat.fi
Joonas Nuutinen
Toimitila-asiantuntija
+358 40 754 5408
joonas.nuutinen@blanckiinteisto.com
