Vuokrataan toimistotilat - Helsinki
Kasarmikatu 44, Kaartinkaupunki, 00130 Helsinki #10838781
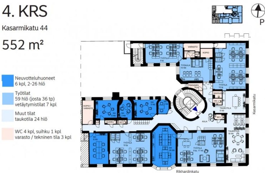
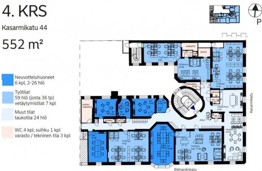
Esplanadin puiston lähettyvillä vuokrattavissa neljännen kerroksen tilava toimisto, joka on remontoitavissa huonetoimisto- tai monitoimitilaksi tarpeiden mukaan. Tilassa on suihku- ja wc-tilat. Kohde sijaitsee Helsingin ydinkeskustassa, noin viiden minuutin kävelymatkan päässä Kauppatorilta.
Helsingin Kasarmikatu 44 on upea toimistokohde vetovoimaisella sijainnilla Kaartinkaupungin alueella. Kohteessa on toimistotilaa sekä muutama kivijalassa sijaitseva liiketila. Alakerrassa sijaitsee viihtyisä ravintola.
Ota yhteyttä ja kysy lisää!
Tiesitkö, että tilanhakijalle palvelumme on maksuton?
www.blanctoimitilat.fi
Joonas Nuutinen
Toimitila-asiantuntija
+358 40 754 5408
joonas.nuutinen@blanckiinteisto.com
