Vuokrataan toimistotilat - Helsinki
John Stenbergin ranta 2, Siltasaari, 00530 Helsinki #10838779
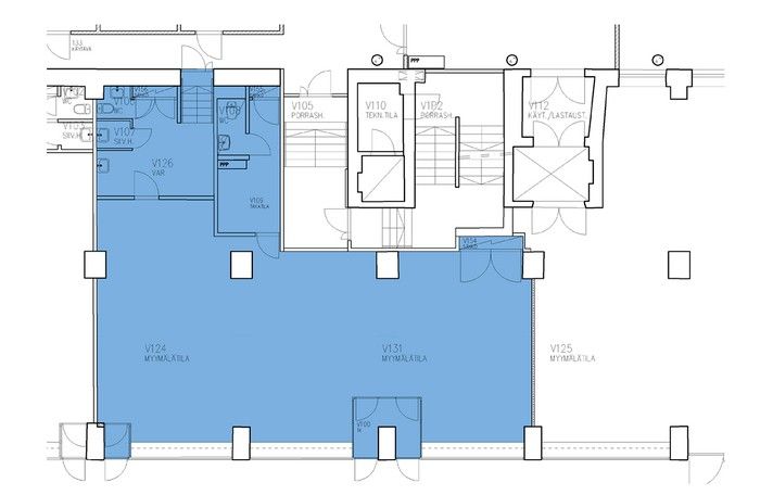
Vuokrattavana moderni toimistotila kauniissa John S -toimistotalossa Helsingin Siltasaaressa. Tämä 3. kerroksen toimistohuoneisto tarjoaa upeat näkymät Pitkänsillan yli Kaisaniemeen ja Eläintarhanlahdelle.
John S -toimistotalo sijaitsee loistavien liikenneyhteyksien varrella ja tarjoaa erinomaiset palvelut, kuten aulapalvelun, kuntosalin, lounasravintolan sekä vuokrattavia neuvottelutiloja. Kiinteistössä on lisäksi pukeutumis- ja pesutilat, pyörävarasto sekä parkkihalli, jossa on sähköautojen latausmahdollisuus.
Ota yhteyttä ja kysy lisää!
Tiesitkö, että tilanhakijalle palvelumme on maksuton?
www.blanctoimitilat.fi
Joonas Nuutinen
Toimitila-asiantuntija
+358 40 754 5408
joonas.nuutinen@blanckiinteisto.com
