Vuokrataan toimistotilat - Espoo
Kutojantie 7, Nihtisilta, 02630 Espoo #10838776
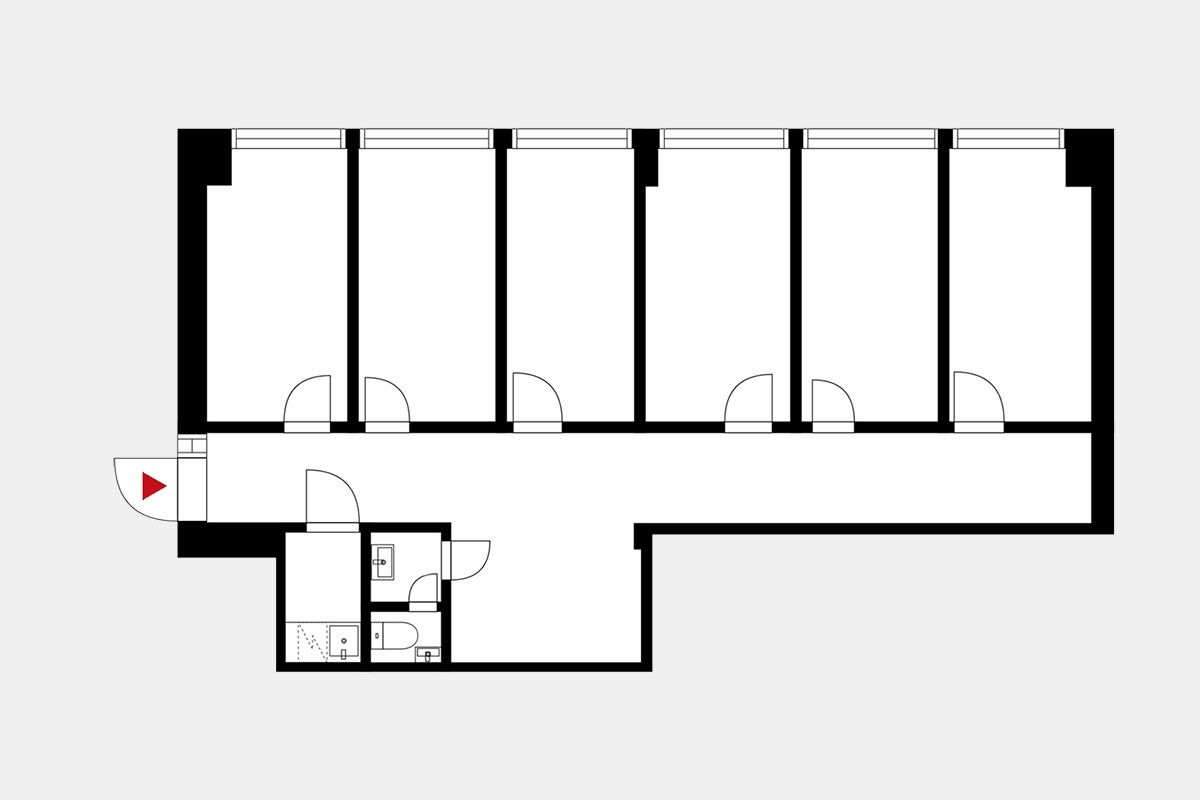
Vuokrattavana siisti neljännen kerroksen toimistotila Espoon Kutojantiellä. Tavarahissi ja kellarikerroksen pienvarastot ovat käytettävissä, ja ylimmässä kerroksessa voi vuokrata saunaosaston neuvottelutiloineen. Sijainti tarjoaa erinomaiset kulkuyhteydet, ja Keran asema on vain 500 metrin päässä. Lämmityspistokkeellisia pysäköintipaikkoja on tarjolla hallissa ja pihalla, vieraspaikat pääsisäänkäynnin edessä.
Ota yhteyttä ja kysy lisää!
Tiesitkö, että tilanhakijalle palvelumme on maksuton?
www.blanctoimitilat.fi
Joonas Nuutinen
Toimitila-asiantuntija
+358 40 754 5408
joonas.nuutinen@blanckiinteisto.com
Osoite
Kutojantie 7, 02630 Espoo
Tilatyyppi
Toimistotilaa
102 m2
Vapautuu
Heti vapaa
Kerros
4
Ota yhteyttä
Pyydä lisätietoa
