Vuokrataan liiketilat - Pori
Itäpuisto 11, Keskustori, 28100 Pori #10838753
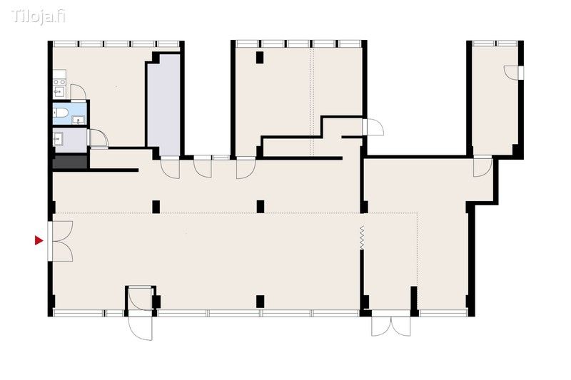
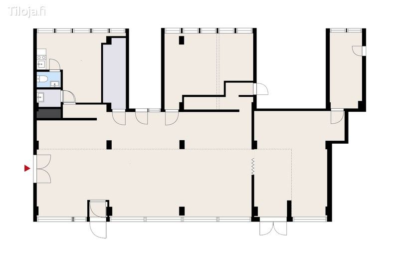
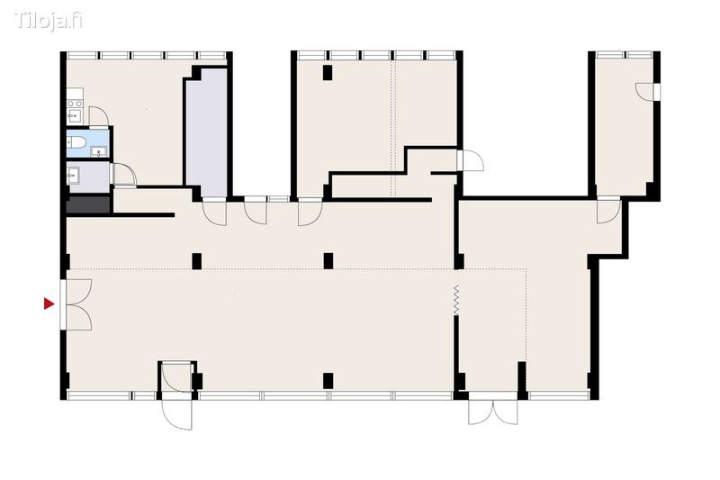
Valoisa ja siisti katutason toimitila huippusijainnilla Porin keskustassa!
Nyt vuokrattavana erinomaisella paikalla sijaitseva katutason toimitila, joka sopii monenlaiseen liiketoimintaan. Suuret ikkunat tuovat runsaasti luonnonvaloa ja tekevät tilasta houkuttelevan niin asiakkaille kuin työntekijöillekin.
Keskustan kaikki palvelut helposti saavutettavissa.
Keskeinen sijainti takaa erinomaisen näkyvyyden ja saavutettavuuden. Lähiliikenteen pysäkit ovat vain noin 230 metrin päässä Kauppatorilla, mikä helpottaa asiakkaiden ja henkilökunnan liikkumista.
Tartu tilaisuuteen ja tee tästä toimitilasta yrityksesi uusi koti!
Vuokraan lisätään alv + kulut.
Ota yhteyttä ja kysy lisää!
www.blanctoimitilat.fi
Masa Hakala
masa.hakala@blanckiinteisto.com
+358 40 964 2482
