Vuokrataan toimistotilat - Helsinki
Malminkatu 28, Kamppi, 00100 Helsinki #10838742
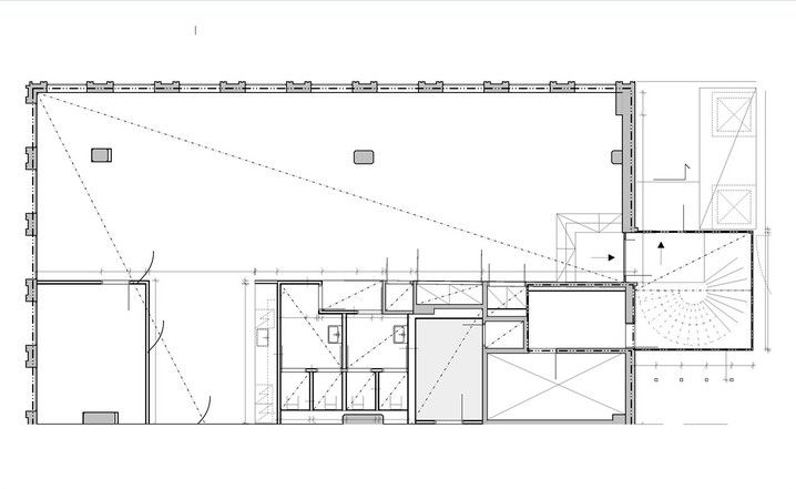
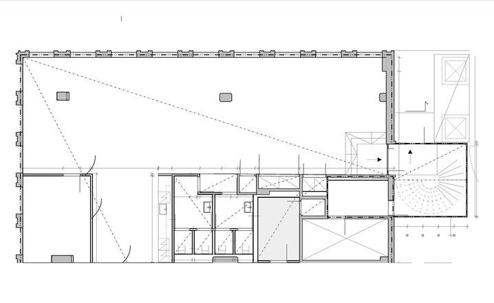
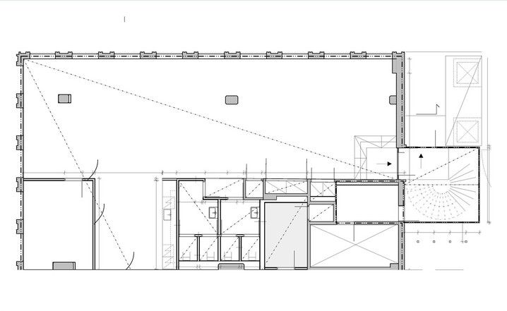
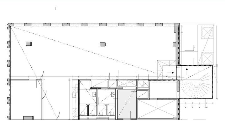
Valmistumassa 1. kerroksen toimistotila osoitteessa Malminkatu 28, Helsingin Kampissa. Kiinteistö edustaa näyttävää 70-luvun arkkitehtuuria ja sijaitsee erinomaisella paikalla, vain lyhyen matkan päässä metroasemalta ja Kampin keskuksesta.
Talon edessä on maksullisia kadunvarsipysäköintipaikkoja, ja lähistöllä sijaitsevat myös kaupalliset pysäköintilaitokset.
Ota yhteyttä ja kysy lisää!
Tiesitkö, että tilanhakijalle palvelumme on maksuton?
www.blanctoimitilat.fi
Joonas Nuutinen
Toimitila-asiantuntija
+358 40 754 5408
joonas.nuutinen@blanckiinteisto.com
Osoite
Malminkatu 28, 00100 Helsinki
Tilatyyppi
Toimistotilaa
165 m2
Vapautuu
Heti vapaa
Ota yhteyttä
Pyydä lisätietoa
