Vuokrataan toimistotilat - Oulu
Teknologiantie 11 Tila 2, Teknologiakylä, 90590 Oulu #10838692
Osoite
Teknologiantie 11 Tila 2, 90590 Oulu
Tilatyyppi
Toimistotilaa
78 - 272 m2
Vuokra
2720,00 €/kk
Vuokraan sisältyy sähkö, vesi, lämpö
Muuta
Tilava ja edullinen toimisto tarjolla Teknologiakylästä.
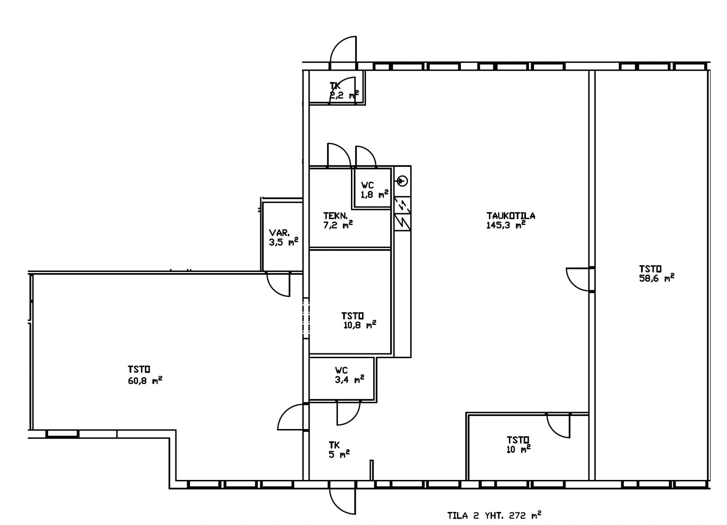
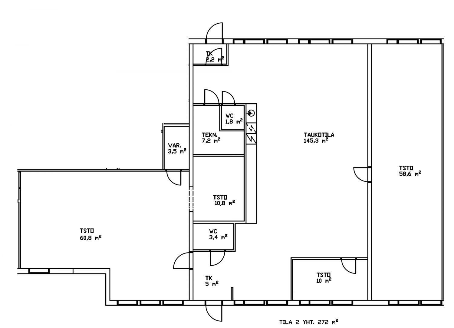
Siisti toimistotila on jaettu taukotilaa lukuun ottamatta osiin. Tiloista 58,6m2 tila on jaettu neljään osaan lasiseinäkkeillä, jotka ovat helposti purettavissa. Taukotilan yhteydessä on 10m2 toimistohuone, kaksi vessaa sekä pieni varastokoppi. Toisessa vessassa suihkukaappi. Tiloissa on koneellinen ilmanvaihto ja viilennys, valokuituverkko ja hyvä valaistus. Lämmitystolpallisia autopaikkoja löytyy pihasta mukavasti. Tila on mahdollista jakaa kahteen osaan, jotka kooltaan 194m2 ja 78m2.
Edullinen vuokra sisältää lämmityksen, veden ja kiinteistöhuollon. Käyttösähköstä maksetaan kulutusperusteinen sähkövastike.
Lisätiedot 040 5400 672 tai joni.romppainen@kiinteistotahkola.fi.
Eikö tämä ole sopiva? Kysy muita vaihtoehtojamme!
Siisti toimistotila on jaettu taukotilaa lukuun ottamatta osiin. Tiloista 58,6m2 tila on jaettu neljään osaan lasiseinäkkeillä, jotka ovat helposti purettavissa. Taukotilan yhteydessä on 10m2 toimistohuone, kaksi vessaa sekä pieni varastokoppi. Toisessa vessassa suihkukaappi. Tiloissa on koneellinen ilmanvaihto ja viilennys, valokuituverkko ja hyvä valaistus. Lämmitystolpallisia autopaikkoja löytyy pihasta mukavasti. Tila on mahdollista jakaa kahteen osaan, jotka kooltaan 194m2 ja 78m2.
Edullinen vuokra sisältää lämmityksen, veden ja kiinteistöhuollon. Käyttösähköstä maksetaan kulutusperusteinen sähkövastike.
Lisätiedot 040 5400 672 tai joni.romppainen@kiinteistotahkola.fi.
Eikö tämä ole sopiva? Kysy muita vaihtoehtojamme!
Vapautuu
01.10.2025
Kerros
1
Ota yhteyttä
Kiinteistö-Tahkola Oy
Lumijoentie 1, 90400 Oulu
Näytä puhelinnumero
0207 480 250
Joni Romppainen
Näytä puhelinnumero
0405400672
Pyydä lisätietoa
