Vuokrataan liiketilat - Helsinki
Runeberginkatu 5, Kamppi, 00100 Helsinki #10838574
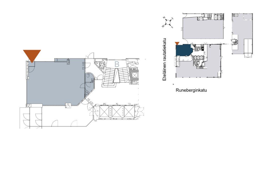
Liiketilaa Helsingin ydinkeskustassa
Osoite
Runeberginkatu 5, 00100 Helsinki
Tilatyyppi
Liiketilaa
66 m2
Muuta
Vuokrattavana hyvältä sijainnilta 66,5m2 katutason liiketilaa Helsingistä.
Tila ei sovellu ravintolakäyttöön.
Runskivuori-toimistotalo sijaitsee näyttävällä paikalla peruskorjatussa Autotalo-korttelissa, aivan Kampin kauppakeskuksen vieressä erinomaisten kulkuyhteyksien päässä. Kiinteistössä on oma parkkihalli sekä pyöräparkki pukuhuone- ja suihkutiloineen, vuokrattavia neuvotteluhuoneita ja lounasravintola Factory.
Tervetuloa tutustumaan, varaathan välittäjältä oman esittelyaikasi. Voit kysyä meiltä myös muita sopivia vaihtoehtoja, kauttamme löydät juuri Teidän tarpeisiinne sopivat tilat.
Palvelumme on tilanhakijalle veloitukseton!
Tila ei sovellu ravintolakäyttöön.
Runskivuori-toimistotalo sijaitsee näyttävällä paikalla peruskorjatussa Autotalo-korttelissa, aivan Kampin kauppakeskuksen vieressä erinomaisten kulkuyhteyksien päässä. Kiinteistössä on oma parkkihalli sekä pyöräparkki pukuhuone- ja suihkutiloineen, vuokrattavia neuvotteluhuoneita ja lounasravintola Factory.
Tervetuloa tutustumaan, varaathan välittäjältä oman esittelyaikasi. Voit kysyä meiltä myös muita sopivia vaihtoehtoja, kauttamme löydät juuri Teidän tarpeisiinne sopivat tilat.
Palvelumme on tilanhakijalle veloitukseton!
Vapautuu
Kysy
Kerros
katutaso
Ota yhteyttä
Tuloskiinteistöt Oy
Rikhardinkatu 2 B 5, 00130 Helsinki
Näytä puhelinnumero
(09) 6841 620
Jorma Ryynänen
Commercial Real Estate Advisor LKV, LVV
Näytä puhelinnumero
+358 40 708 4064
Nina Meyke
Commercial Real Estate Advisor
Näytä puhelinnumero
+358 50 466 1519
Pyydä lisätietoa
