Vuokrataan liiketilat - Helsinki
Fredrikinkatu 24, Punavuori, 00120 Helsinki #10838455
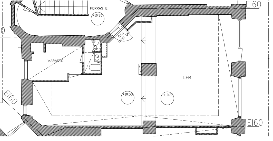
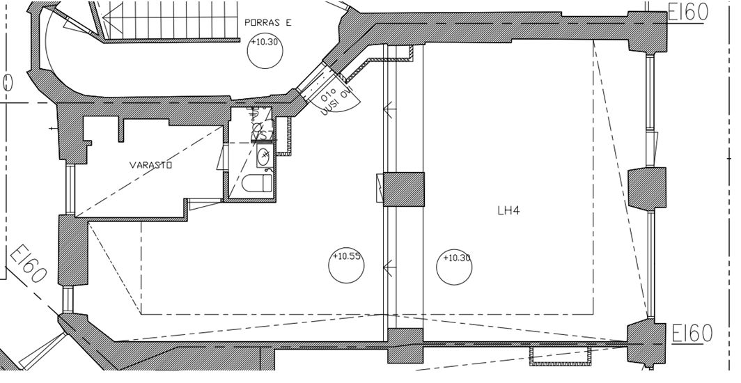
Tämä liiketila koostuu kahdesta kerroksesta, josta on suora pääsy vilkaalle kadulle. Katutasosta löytyy kaksi suurta ikkunaa ja kutsuva avotila. Alakerrasta löytyy yksi yhtenäinen huone, pieni keittiö ja wc-tilat. Tila ei sovellu kampaamo käyttöön.
Fredrikinkatu 24 on arvostettu ja hyvin hoidettu liikekiinteistö Helsingin Punavuoressa, yhdellä kaupungin keskeisimmistä sijainneista. Rakennus tarjoaa laadukkaita ja muuntojoustavia toimitiloja yrityksille, jotka arvostavat erinomaista saavutettavuutta, urbaania miljöötä ja kattavia palveluita ympärillään.
Kiinteistö sijaitsee vilkkaalla liikekadulla aivan Kampin ja Punavuoren rajalla, vain muutaman minuutin kävelymatkan päässä Kampin keskuksesta ja Mannerheimintiestä. Alue on tunnettu kaupoistaan, kahviloistaan ja luovasta ilmapiiristään, mikä houkuttelee niin yrityksiä kuin asiakkaitakin.
Me Croisettella autamme teitä löytämään teille parhaat tilat! Olemme puolueettomia asiantuntijoita ja tunnemme toimitilamarkkinat, talot sekä tilat vankalla kokemuksella. Meillä on välityksessä kaikki toimitilat ja tiedämme niiden alustavat vuokratasot.
Tehtävämme on tehdä toimitilahaustanne onnistunutta ja helppoa. Saamme palkkiomme kiinteistönomistajalta, joten sinulle palvelumme on täysin maksuton. Jos kiinnostuit, ota yhteyttä sähköpostitse osoitteeseen vuokraus@croisette.fi tai soita numeroon +358 40 005857.
Croisette Real Estate Partner
Erottajankatu 5 A 6, 00130 Helsinki
Näytä puhelinnumero
+358 400 585 857
Croisette Vuokraus
Näytä puhelinnumero
+358400585857
