Vuokrataan toimistotilat - Helsinki
Ilmalantori 4, Pasila, 00240 Helsinki #10838446
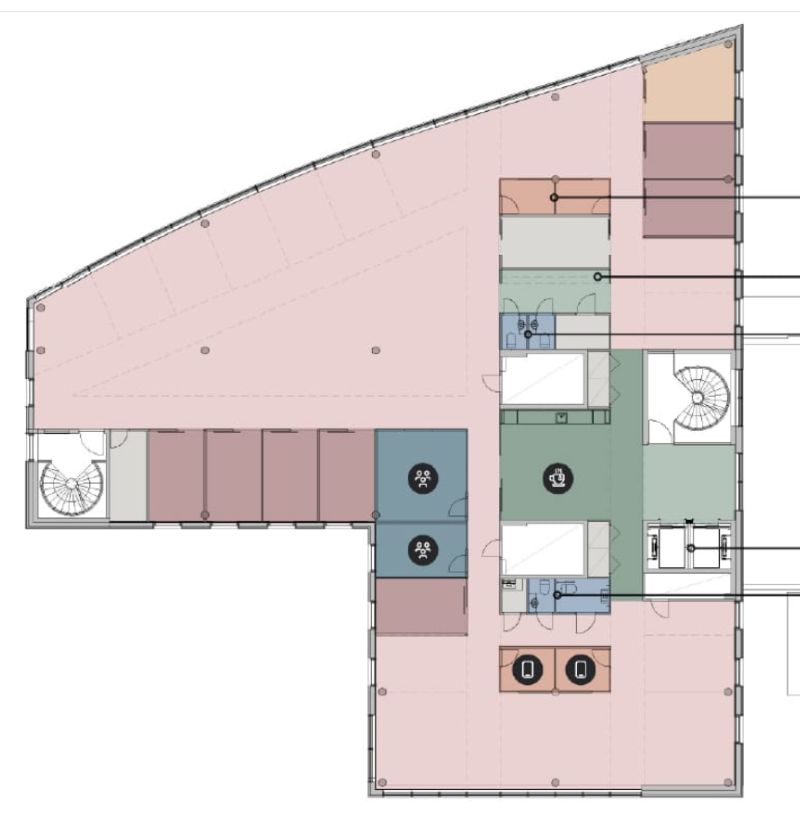
Vuokrattavana avaraa, valoisaa ja modernia toimistotilaa.
Osoite
Ilmalantori 4, 00240 Helsinki
Tilatyyppi
Toimistotilaa
717,5 m2
Kiinteistö
Vuokrattavana avaraa, valoisaa ja modernia toimistotilaa. Tilassa on avotila, eri kokoisia neuvottelu- ja työhuoneita, moderni keittiö ja wc-tilat. Vapaat toimistot sijaitsevat 4, 5, 6 kerroksissa.
Sijainti
Pasila, Helsinki
Pysäköinti
Kiinteistössä on oma lämmin pysäköintihalli, josta on vuokrattavissa pysäköintitilaa tarpeen mukaan.
Palvelut
-Aulapalvelu
-Ravintola
-Kahvila
-Vuokrattavat neuvottelutilat
-Ravintola
-Kahvila
-Vuokrattavat neuvottelutilat
Kulkuyhteydet
-Juna
-Raitiovaunu
-Bussi
-Oma auto
-Raitiovaunu
-Bussi
-Oma auto
Vapautuu
Heti
Kerros
4, 5, 6
Energiatehokkuusluokka
B
Näkyvällä paikalla
Hissi
Ota yhteyttä
REALIUM OY LKV
Tammasaarenkatu 1, 00180 Helsinki
Vaihde:
Näytä puhelinnumero
010 326 346
Tuomo Mäkelä
tuomo.makela@realium.fi
p.
Näytä puhelinnumero
044 050 1158
Joel Keto
joel.keto@realium.fi
p.
Näytä puhelinnumero
045 317 0330
KAIKKI TILAVAIHTOEHDOT KERRALLA!
SOITA - MEILAA JA TILAA NÄYTTÖ!
Ilmainen palvelu tilanhakijoille.
Kartoitamme parhaat tilavaihtoehdot.
Kaikki kohteet eivät ole netissä.
Pyydä lisätietoa
