Vuokrataan toimistotilat - Helsinki
Aleksanterinkatu 11, Kluuvi, 00100 Helsinki #10838425
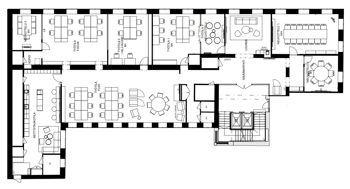
Vuokrattavana valoisaa, modernia toimistotilaa, joka sijaitsee keskeisellä paikalla Aleksanterinkadun ja Kluuvikadun kulmassa.
Osoite
Aleksanterinkatu 11, 00100 Helsinki
Tilatyyppi
Toimistotilaa
475 m2
Kiinteistö
Vuokrattavana valoisaa, modernia toimistotilaa, joka sijaitsee keskeisellä paikalla Aleksanterinkadun ja Kluuvikadun kulmassa. Tila koostuu avotilasta, työhuoneista, neuvotteluhuoneista sekä omista sosiaalitiloista. Tilat vastaavat täydellisesti nykytoimistovuokralaisen vaatimuksiin.
Sijainti
Kluuvi, Helsinki
Palvelut
Ydinkeskustan palvelut.
Kulkuyhteydet
Loistavat kulkuyhteydet.
Vapautuu
01.11.2025
Saneerausvuosi
2020
Kerros
4
Energiatehokkuusluokka
Ei lain edellyttämää energiatodistusta
Näkyvällä paikalla
Hissi
Ota yhteyttä
REALIUM OY LKV
Tammasaarenkatu 1, 00180 Helsinki
Vaihde:
Näytä puhelinnumero
010 326 346
Tuomo Mäkelä
tuomo.makela@realium.fi
p.
Näytä puhelinnumero
044 050 1158
Joel Keto
joel.keto@realium.fi
p.
Näytä puhelinnumero
045 317 0330
KAIKKI TILAVAIHTOEHDOT KERRALLA!
SOITA - MEILAA JA TILAA NÄYTTÖ!
Ilmainen palvelu tilanhakijoille.
Kartoitamme parhaat tilavaihtoehdot.
Kaikki kohteet eivät ole netissä.
Pyydä lisätietoa
