Vuokrataan toimistotilat - Helsinki
Kasarmikatu 44, Kaartinkaupunki, 00130 Helsinki #10838348
Toimistotilaa Helsingin keskustassa, Kaartinkaupungissa.
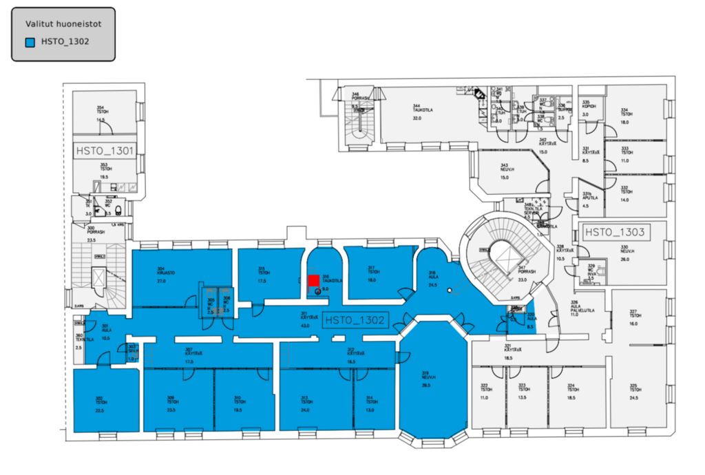
Tämä 345,5 m² toimistotila sijaitsee kiinteistön 3. kerroksessa. Toimisto on huoneellinen, ja sitä on mahdollista remontoida monitilatoimistoksi vuokralaisen tarpeiden mukaan. Tila on mahdollista vuokrata yhdessä viereisen 312 m² toimiston kanssa, jolloin kokonaispinta-ala on 657,5 m².
Kasarmikadun puoleinen rakennus on valmistunut vuonna 1933 ja Rikhardinkadun puoli vuonna 1890. Molemmat ovat olleet alunperin asuinkäytössä, mutta ne on muutettu 1960-luvulla toimistokäyttöön. Kiinteistössä on viisi kerrosta, katutasossa sijaitsevat liiketilat ja ylemmät kerrokset ovat toimistokäytössä.
Kysy lisää numerosta 044 723 4700 tai info@bref.fi. Palvelumme on tilanhakijoille ilmainen.
Bureau Real Estate Finland Oy
Lars Sonckin kaari 16, 02600 Espoo
Näytä puhelinnumero
0447234700
Bureau Real Estate Finland Oy
https://www.bref.fi