Vuokrataan varastotilat - Helsinki
Kalevankatu 20, Keskusta, 00100 Helsinki #10838344
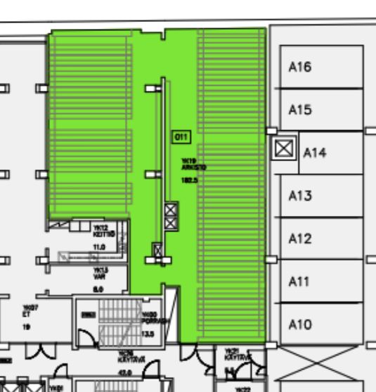
Vuokrattavana varastotilaa Helsingin keskustasta.
Tämä 182,5 m² varasto-/arkistotila sijaitsee kiinteistön yläkellarikerroksessa. Tilassa on siirreltävät arkistohyllyt valmiina, jotka on mahdollista poistaa tarvittaessa. Vapautuminen 1.1.2026.
Kalevankatu 20 on toimistokiinteistö, joka sijaitsee Helsingin keskustassa, lyhyen matkan päässä Kampin keskuksen palveluista. Kiinteistö on saneerattu ja sen kaikissa tiloissa on jäähdytys. Kiinteistön tilat ovat joustavasti muokattavissa uuden vuokralaisen tarpeiden mukaan. Kaikki keskustan ja Kampin alueen palvelut kävelymatkan päässä. Kiinteistöllä on myös oma pysäköintihalli.
Kysy lisää numerosta 044 723 4700 tai info@bref.fi. Palvelumme on tilanhakijoille ilmainen.
Hissi
Bureau Real Estate Finland Oy
Lars Sonckin kaari 16, 02600 Espoo
Näytä puhelinnumero
0447234700
Bureau Real Estate Finland Oy
https://www.bref.fi