Vuokrataan tuotantotilat - Naantali
Patenttikatu 10, Luolala, 21100 Naantali #10838342
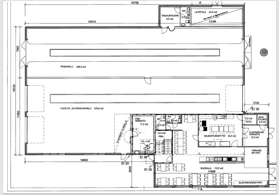
Raskaan kaluston huoltohalli
Osoite
Patenttikatu 10, 21100 Naantali
Tilatyyppi
Tuotantotilaa
296 m2
Vuokra
3000 €/kk + alv + hoitokulut
Kiinteistö
Raskaan kaluston huolto- ja pesuhalli
Läpiajettava, täyspitkän rekan huoltoon mitoitettu huoltomonttu. Hallin sisäpituus 26 m. Yhdessä päädyssä 2 kpl korkeaa nosto-ovea, toisessa päädyssä 1 korkea nosto-ovi.
Iso piha-alue helpottaa liikkumista isolla kalustolla.
WC ja väestönsuojatila, joka on ollut toimistokäytössä. Lisäksi edelliselle vuokralaiselle rakennettu toimistohuone noin 20 m2 hallin puolella.
Samassa rakennuksessa suosittu lounasravintola.
Sijainti
Tilat sijaitsevat loistavalla sijainnilla Naantalin vireällä Luolalan teollisuusalueella Naantalin Sataman läheisyydessä. Patenttikatu johtaa Naantalin pikatien liittymästä satamaan ja alueella toimii muitakin kuljetusalan yrityksiä.
Ota yhteyttä ja kysy lisää. Mennään katsomaan tätä hallia! Palvelumme on maksutonta tiloja etsivälle.
Läpiajettava, täyspitkän rekan huoltoon mitoitettu huoltomonttu. Hallin sisäpituus 26 m. Yhdessä päädyssä 2 kpl korkeaa nosto-ovea, toisessa päädyssä 1 korkea nosto-ovi.
Iso piha-alue helpottaa liikkumista isolla kalustolla.
WC ja väestönsuojatila, joka on ollut toimistokäytössä. Lisäksi edelliselle vuokralaiselle rakennettu toimistohuone noin 20 m2 hallin puolella.
Samassa rakennuksessa suosittu lounasravintola.
Sijainti
Tilat sijaitsevat loistavalla sijainnilla Naantalin vireällä Luolalan teollisuusalueella Naantalin Sataman läheisyydessä. Patenttikatu johtaa Naantalin pikatien liittymästä satamaan ja alueella toimii muitakin kuljetusalan yrityksiä.
Ota yhteyttä ja kysy lisää. Mennään katsomaan tätä hallia! Palvelumme on maksutonta tiloja etsivälle.
Vapautuu
Kysy
Kerros
1 / katutaso
Ota yhteyttä
Logistila Oy
Tuureporinkatu 6, 20100 TURKU
Stina Lindroos
Näytä puhelinnumero
044 972 9468
Pyydä lisätietoa
