Vuokrataan toimistotilat - Espoo
Vaisalantie 4, Otaniemi, 02130 Espoo #10838325
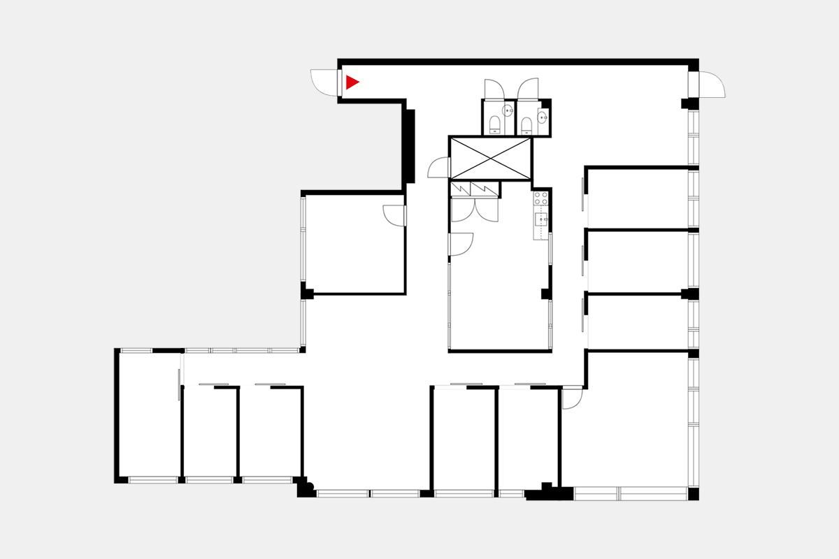
Vuokrataan kolmannen kerroksen muuttovalmis 283 m² toimistotila Technopolis Otaniemestä! Tässä tilassa on avaraa avotilaa, useita työ-/neuvotteluhuoneita, erillinen taukotila keittiöllä ja wc-tilat.
Technopolis Otaniemi koostuu neljästä Innopoli- rakennuksesta, joissa on tarjolla sekä pieniä että suuria toimistotiloja. Lisäksi kampuksella on Technopolis HUB Otaniemi, joka tarjoaa pientoimistoja alle 10 hengen tiimeille. Kampuksen tilat ovat muuntojoustavia ja helposti räätälöitävissä yrityksen tarpeisiin!
Kampuksen sijainti Kehä I:n varrella on erinomainen â Helppo saavutettavuus metrolla, bussilla, pikaratikalla ja autolla. Kampus sijaitsee myös lähellä Aalto- yliopistoa ja teknologiaosaamisen keskittymää â tämä on ihanteellinen paikka yhteistyölle ja verkostoitumiselle!
Technopolis Otaniemi tarjoaa kattavat palvelut, jotka tukevat yrityksesi arkea: ystävällinen aulapalvelu huolehtii vieraiden vastaanotosta ja postipalveluista, ravintolat ja kahvilat tarjoavat laadukasta ruokaa sekä cateringia, ja hyvinvointia tukevat kuntosali sekä suihkutilat. Käytössäsi on myös modernit kokous- ja saunatilat, siivous- ja IT-palvelut, turvallisuusratkaisut sekä pyöräparkit ja sähköautojen latauspisteet.
Vastuullisuus on osa koko Technopoliksen toimintafilosofiaa. Se näkyy monella tasolla tälläkin LEED sertifioidulla kampuksella mm. energiatehokkuudessa, vedenkulutuksen vähentämisessä sekä sisäilman laadussa. Lisäksi Technopolis tukee asiakkaiden omia vastuullisuustavoitteita ja tarjoaa asiakkailleen mahdollisuuden raportoida omasta vastuullisuudestaan.
Kysy rohkeasti lisätietoja ja sovitaan käynti kohteella jo tänään!
Hissi
Hausala Oy
Erkkilänkatu 11, 33100 Tampere
Näytä puhelinnumero
050 472 7077
Mikko Ranta
Näytä puhelinnumero
050 360 6500
Mika Savikko
Näytä puhelinnumero
050 472 7077
