Vuokrataan toimistotilat - Helsinki
Ruoholahdenkatu 14, Kamppi, 00180 Helsinki #10838312
Uutta toimistotilaa hyvällä sijainnilla
Osoite
Ruoholahdenkatu 14, 00180 Helsinki
Tilatyyppi
Toimistotilaa
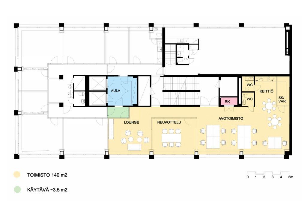
140 m2
Muuta
Vuokrataan 140m2 2. kerroksen toimistotila Kampista. Valoisassa tilassa on suuret ikkunat ja alkuperäiset tiikkiset ikkunapenkit. Voitte suunnitella pohjaratkaisun sekä viimeistelyn teidän yrityksenne tarpeiden mukaisiksi. Tila on heti vapaa.
Kampin metroasemalle on kiinteistöltä reilu 5 minuutin kävelymatka ja bussi- sekä ratikkapysäkki sijaitsee kiinteistön edessä. Länsiväylältä erittäin sujuva pääsy omaan parkkihalliin tai sisäpihalle, joista löytyy hyvin parkkipaikkoja. Työmatkapyöräilijöidenkin on helppo tulla baanaa pitkin. Pyörän voi pysäköidä turvallisesti lukittuun fillariparkkiin kiinteistön kellarikerrokseen, jossa on myös pyöränhuoltopiste. Pyöräilyn jäljiltä kastuneet varusteet kuivatat työpäivän aikana kiinteistön kuivauskaapeissa. Rakennuksessa on juuri uusitut suihku- ja pukuhuonetilat.
Vastuullisuus- ja ekologisuusperiaatteet ovat vahvasti läsnä kiinteistön arjessa: jätehuolto on kokonaan hiilineutraali, sen CO2-päästöt hyvitetään vuosittain pysyviä hiilinieluja metsittämällä. Vuonna 2020 rakennuksen energiatehokkuutta parannettiin kattavassa energiaremontissa uusimalla talotekniikka, jonka seurauksena energiankulutus väheni lähes 30%. Lisäksi kiinteistön kaikki sähkösopimukset ovat hiilidioksidivapaita. Kohteella on voimassa oleva Very Good -tason BREAM sertifiointi, jota uusitaan parhaillaan. Ruoholahdenkatu 14:a valituilla materiaaleilla ja tuotteilla on kaikilla CE-merkintä sekä M1-päästöluokitus.
Sisäkuvat ovat havainnekuvia.
Tervetuloa tutustumaan! Mikäli tämä kohde ei vastaa toiveitanne, ota yhteyttä, etsimme juuri teille sopivan tai räätälöidyn toimitilan. Palvelumme on vuokralaisille veloitukseton.
Kampin metroasemalle on kiinteistöltä reilu 5 minuutin kävelymatka ja bussi- sekä ratikkapysäkki sijaitsee kiinteistön edessä. Länsiväylältä erittäin sujuva pääsy omaan parkkihalliin tai sisäpihalle, joista löytyy hyvin parkkipaikkoja. Työmatkapyöräilijöidenkin on helppo tulla baanaa pitkin. Pyörän voi pysäköidä turvallisesti lukittuun fillariparkkiin kiinteistön kellarikerrokseen, jossa on myös pyöränhuoltopiste. Pyöräilyn jäljiltä kastuneet varusteet kuivatat työpäivän aikana kiinteistön kuivauskaapeissa. Rakennuksessa on juuri uusitut suihku- ja pukuhuonetilat.
Vastuullisuus- ja ekologisuusperiaatteet ovat vahvasti läsnä kiinteistön arjessa: jätehuolto on kokonaan hiilineutraali, sen CO2-päästöt hyvitetään vuosittain pysyviä hiilinieluja metsittämällä. Vuonna 2020 rakennuksen energiatehokkuutta parannettiin kattavassa energiaremontissa uusimalla talotekniikka, jonka seurauksena energiankulutus väheni lähes 30%. Lisäksi kiinteistön kaikki sähkösopimukset ovat hiilidioksidivapaita. Kohteella on voimassa oleva Very Good -tason BREAM sertifiointi, jota uusitaan parhaillaan. Ruoholahdenkatu 14:a valituilla materiaaleilla ja tuotteilla on kaikilla CE-merkintä sekä M1-päästöluokitus.
Sisäkuvat ovat havainnekuvia.
Tervetuloa tutustumaan! Mikäli tämä kohde ei vastaa toiveitanne, ota yhteyttä, etsimme juuri teille sopivan tai räätälöidyn toimitilan. Palvelumme on vuokralaisille veloitukseton.
Vapautuu
Kysy
Kerros
2
Ota yhteyttä
Tuloskiinteistöt Oy
Rikhardinkatu 2 B 5, 00130 Helsinki
Näytä puhelinnumero
(09) 6841 620
Nina Meyke
Commercial Real Estate Advisor
Näytä puhelinnumero
+358 50 466 1519
Otto Ahtola
Commercial Real Estate Advisor
Näytä puhelinnumero
+358 40 042 2830
Pyydä lisätietoa
