Vuokrataan toimistotilat - Helsinki
Fredrikinkatu 47, Keskusta, 00100 Helsinki #10838278
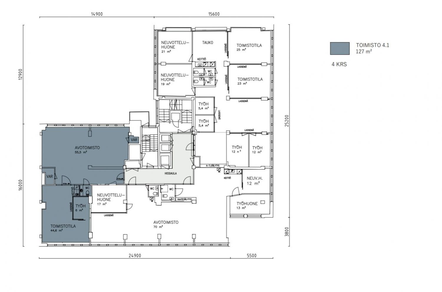
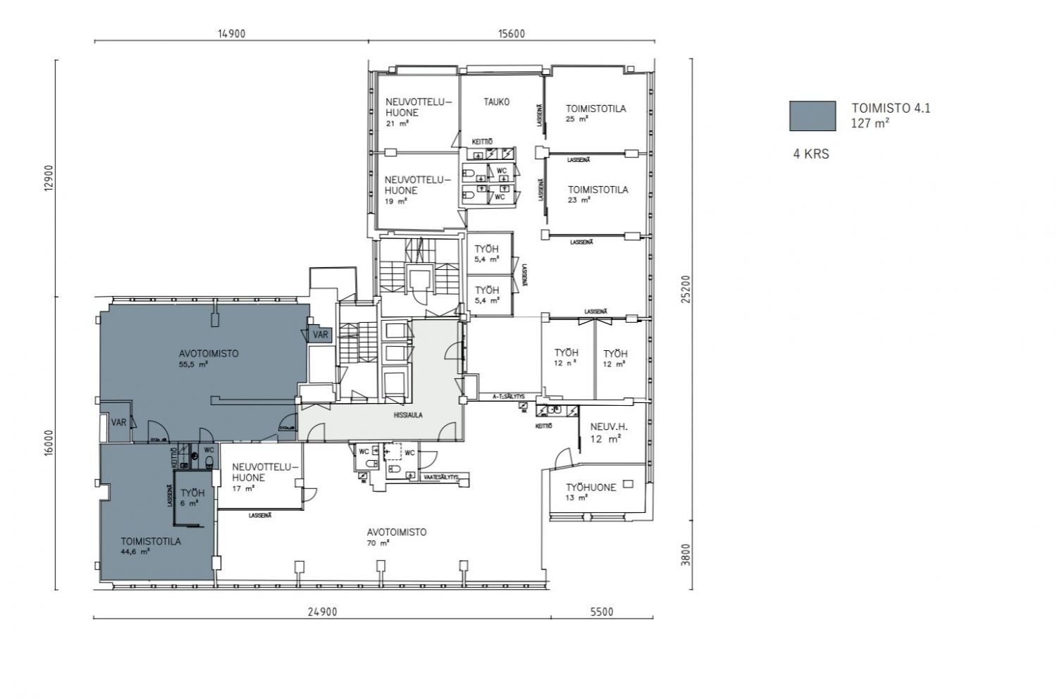
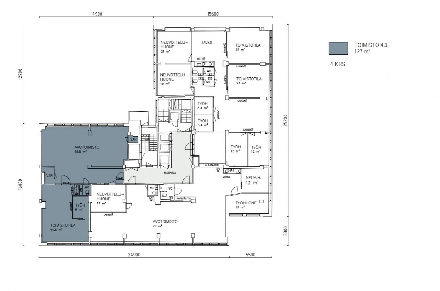
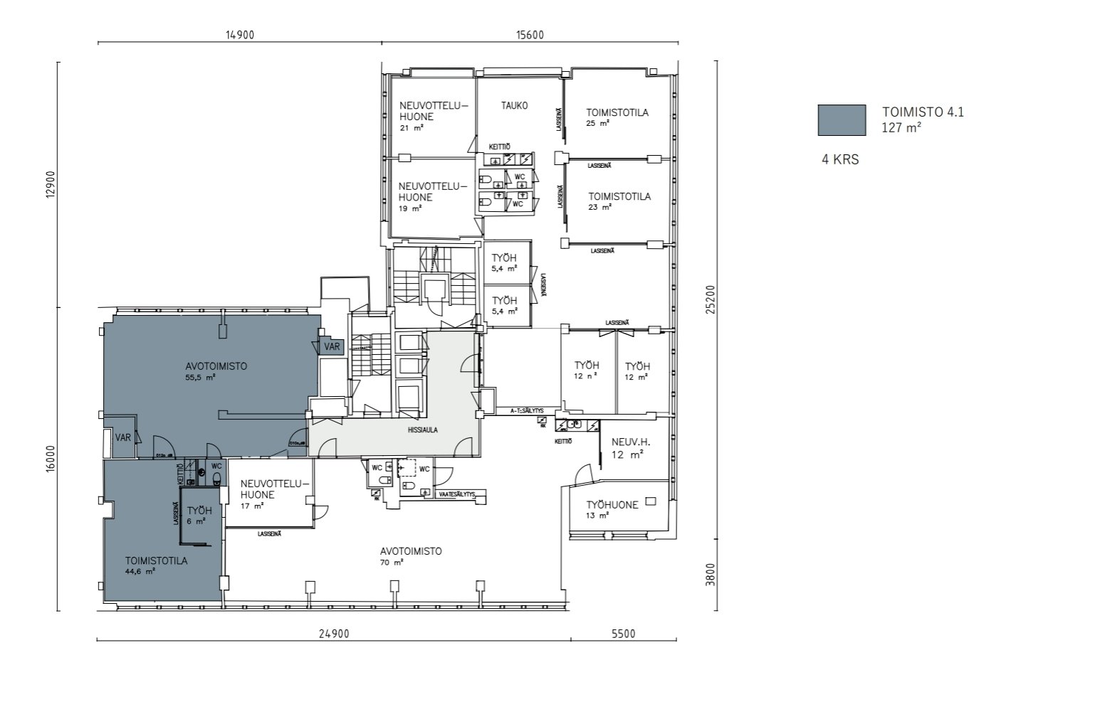
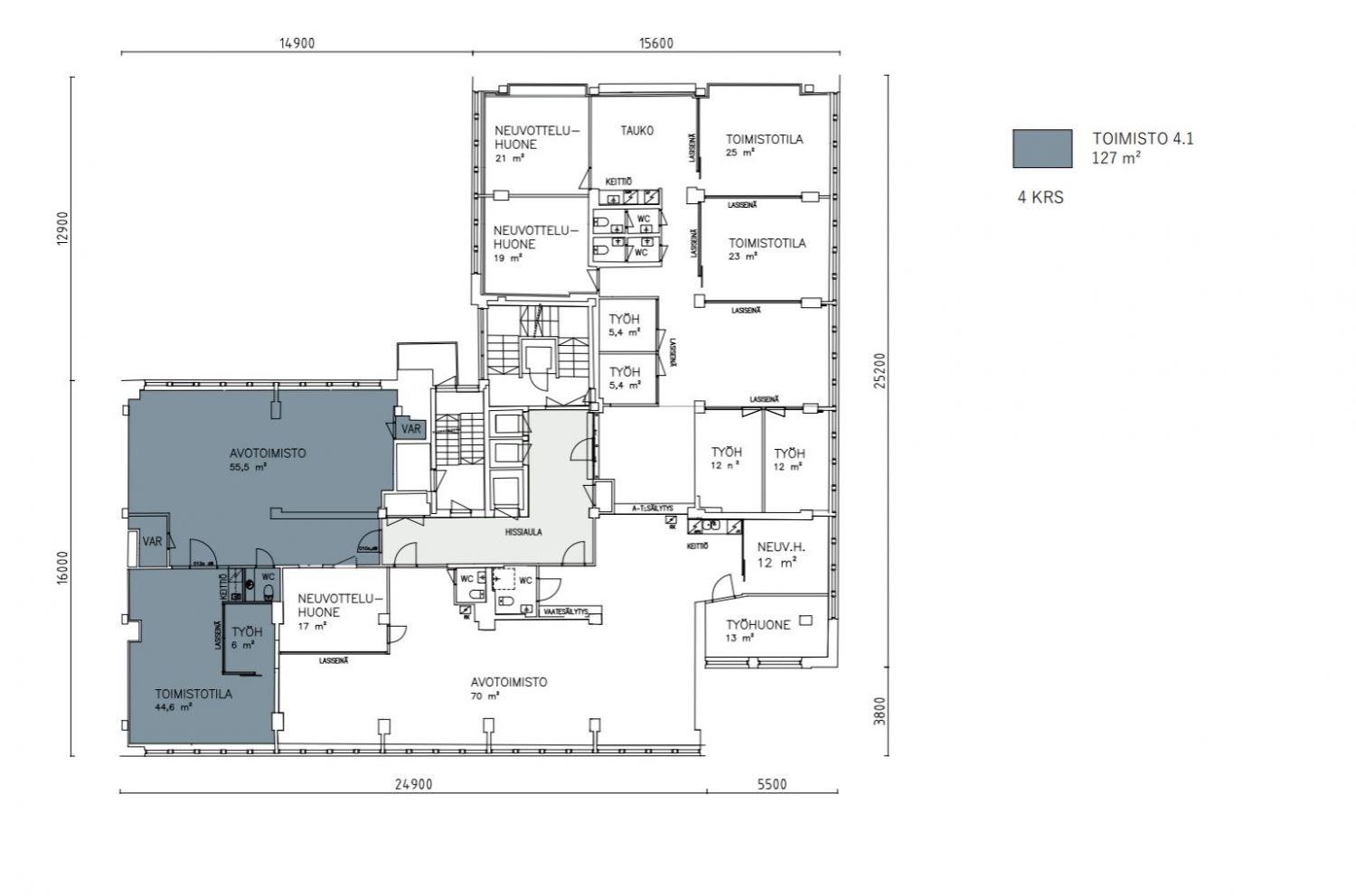
Vuokrattavissa moderni ja valoisa toimisto keskustassa. Tilasta löytyy moderni keittiö sekä siistit wc-tilat. Tila on pääosin avotilaa, mutta siihen on mahdollista tehdä muutostöitä, kuten neuvotteluhuone.
Freda 47 sijaitsee Fredrikinkadulla kauppakeskus Kampin välittömässä läheisyydessä. Erinomaiset kulkuyhteydet niin metrolla, bussilla, junalla ja raitiovaunulla mistä ikinä saavutkin. Kaikki keskustan palvelut ovat aivan vieressä ja samassa korttelissa löytyy useita ravintoloita ja kahviloita. Kiinteistön aulasta löytyy Postin pakettiautomaatti ja lisäksi kohteessa on tavarahissiyhteys kaikkiin kerroksiin. Kellaritiloista löytyvät suihkutilat ja vuokrattavat varastotilat. Kiinteistöllä on oma parkkihalli, josta löytyy parkkipaikkojen lisäksi pyöräpaikkoja.
Me Croisettella autamme teitä löytämään teille parhaat tilat! Olemme puolueettomia asiantuntijoita ja tunnemme toimitilamarkkinat, talot sekä tilat vankalla kokemuksella. Meillä on välityksessä kaikki toimitilat ja tiedämme niiden alustavat vuokratasot.
Tehtävämme on tehdä toimitilahaustanne onnistunutta ja helppoa. Saamme palkkiomme kiinteistönomistajalta, joten sinulle palvelumme on täysin maksuton. Jos kiinnostuit, ota yhteyttä sähköpostitse osoitteeseen vuokraus@croisette.fi tai soita numeroon +358 4 00585857.
Croisette Real Estate Partner
Erottajankatu 5 A 6, 00130 Helsinki
Näytä puhelinnumero
+358 400 585 857
Croisette Vuokraus
Näytä puhelinnumero
+358400585857
