Vuokrataan toimistotilat - Naantali
Linkkikatu 14 B, Luolala, 21100 Naantali #10838274
Laadukasta toimistoa Naantalin Luolalan alueelta
Osoite
Linkkikatu 14 B, 21100 Naantali
Tilatyyppi
Toimistotilaa
266 m2
Muuta
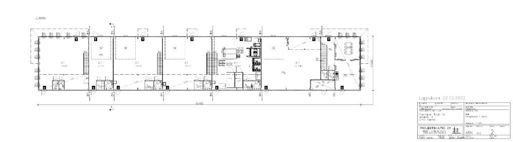
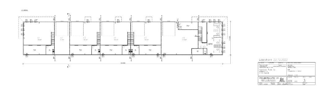
Vuokrattavana varasto- ja toimistotilaa Naantalin Luolalan alueella. Tarjolla on yhteensä 286 m², joka koostuu 116 m² varastosta ja 150 m² toimistosta. Tilat on mahdollista vuokrata myös erikseen, mikä antaa joustavuutta erilaisiin tarpeisiin.
Varastotila soveltuu hyvin varastointiin, pienimuotoiseen tuotantoon tai muuhun yritystoimintaan. Tila sijaitsee käytännöllisellä paikalla kiinteistön yhteydessä ja on helposti saavutettavissa. Sekä varasto että toimistotila vapautuvat joulukuussa 2025. Vuokraus perustuu pääomavuokraan, ja sähkö, vesi sekä lämmitys laskutetaan kulutuksen mukaan.
Toimisto sijaitsee rakennuksen päädyssä, varaston viereisessä rakennusosassa ja on kahdessa kerroksessa. Alakerrasta löytyy neuvotteluhuone ja taukotila, yläkerrassa sijaitsevat työtilat. Toimiston ja varaston välillä on sisäinen kulkuyhteys käyntiovella, mikä mahdollistaa sujuvan liikkumisen tilojen välillä. Kiinteistössä on valokuituyhteys, yksi sähköautopaikka sisältyy vuokraan, ja viereisessä kiinteistössä toimii lounasravintola, joka tuo lisämukavuutta työpäivän arkeen.
Tervetuloa tutustumaan, varaathan välittäjältä oman esittelyaikasi. Voit kysyä meiltä myös muita sopivia vaihtoehtoja, kauttamme löydät juuri Teidän tarpeisiinne sopivat tilat. Palvelumme on tilanhakijalle veloitukseton!
Varastotila soveltuu hyvin varastointiin, pienimuotoiseen tuotantoon tai muuhun yritystoimintaan. Tila sijaitsee käytännöllisellä paikalla kiinteistön yhteydessä ja on helposti saavutettavissa. Sekä varasto että toimistotila vapautuvat joulukuussa 2025. Vuokraus perustuu pääomavuokraan, ja sähkö, vesi sekä lämmitys laskutetaan kulutuksen mukaan.
Toimisto sijaitsee rakennuksen päädyssä, varaston viereisessä rakennusosassa ja on kahdessa kerroksessa. Alakerrasta löytyy neuvotteluhuone ja taukotila, yläkerrassa sijaitsevat työtilat. Toimiston ja varaston välillä on sisäinen kulkuyhteys käyntiovella, mikä mahdollistaa sujuvan liikkumisen tilojen välillä. Kiinteistössä on valokuituyhteys, yksi sähköautopaikka sisältyy vuokraan, ja viereisessä kiinteistössä toimii lounasravintola, joka tuo lisämukavuutta työpäivän arkeen.
Tervetuloa tutustumaan, varaathan välittäjältä oman esittelyaikasi. Voit kysyä meiltä myös muita sopivia vaihtoehtoja, kauttamme löydät juuri Teidän tarpeisiinne sopivat tilat. Palvelumme on tilanhakijalle veloitukseton!
Vapautuu
Kysy
Kerros
1.-2.
Ota yhteyttä
Tuloskiinteistöt Oy
Kauppiaskatu 11 C 23, 20100 Turku
Näytä puhelinnumero
(02) 274 3500
Ritva Nuotio
Commercial Real Estate Advisor LKV, KED
Näytä puhelinnumero
+358 50 5261 744
Karoliina Eklund
Leasing Support Specialist
Näytä puhelinnumero
+358 40 017 8999
Pyydä lisätietoa
