Vuokrataan tuotantotilat, varastotilat - Askola
Teolllisuustie 2, 07230 Askola #10838127
Vuokrataas Askolasta monipuolista teollisuustilaa. Tila on toiminut aiemmin kalustetehtaana. Mahdollisuus vuokrata myös kalustetehtaan koneet ja laitteet.
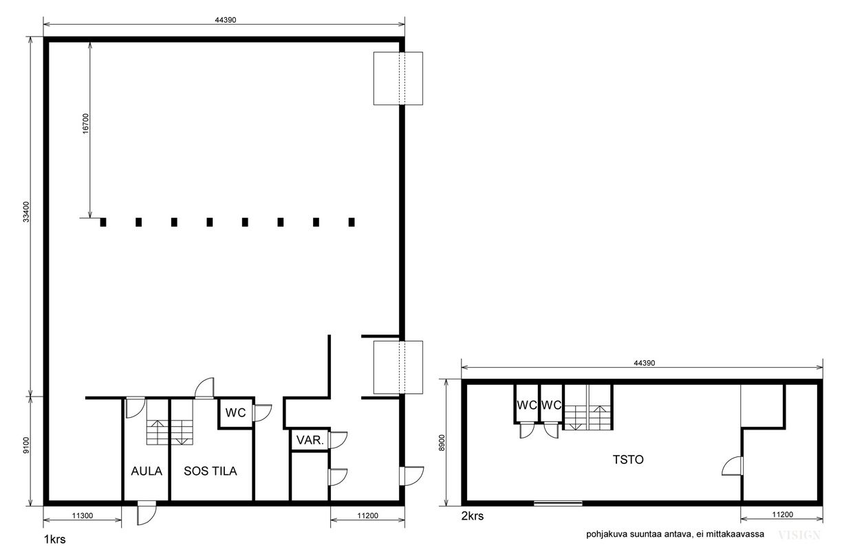
Koko kiinteistö n 2250 m2, mutta tilaa pystyy jakamaan. Mielellään pienin tilakokonaisuus n 750 - 1000 m2.
Hallissa 2 nosto-ovea noin 4.3x4.2, lastauslaituri, toinen ovi sisään asettava. Hallin koko n.1500m2 ja korkeus n.4.4m.
1krs matalaa tilaa n. 2,9m jossa sos tilat ja 2.kerroksessa tstotilaa. Lämmitys Weve-ilmalämpöpumpulla, varalla talvipakkasilla öljylämmitys.
Lisätiedot: Mika /045 261 6555
Lisää kohteita www.premises.fi
Kohteella ei ole lainmukaista energiatodistusta tai sitä ei ole saatavilla.
CRE PREMISES
Puh. Näytä puhelinnumero 020 7290 710
Vantaankoskentie 14
01670 VANTAA
