Vuokrataan toimistotilat, liiketilat, näyttelytilat, työtilat - Tornio
Kemintie 25, Pudas, 95420 Tornio #10838080
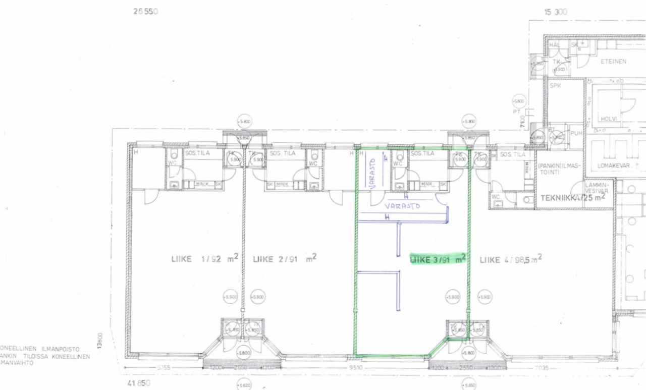
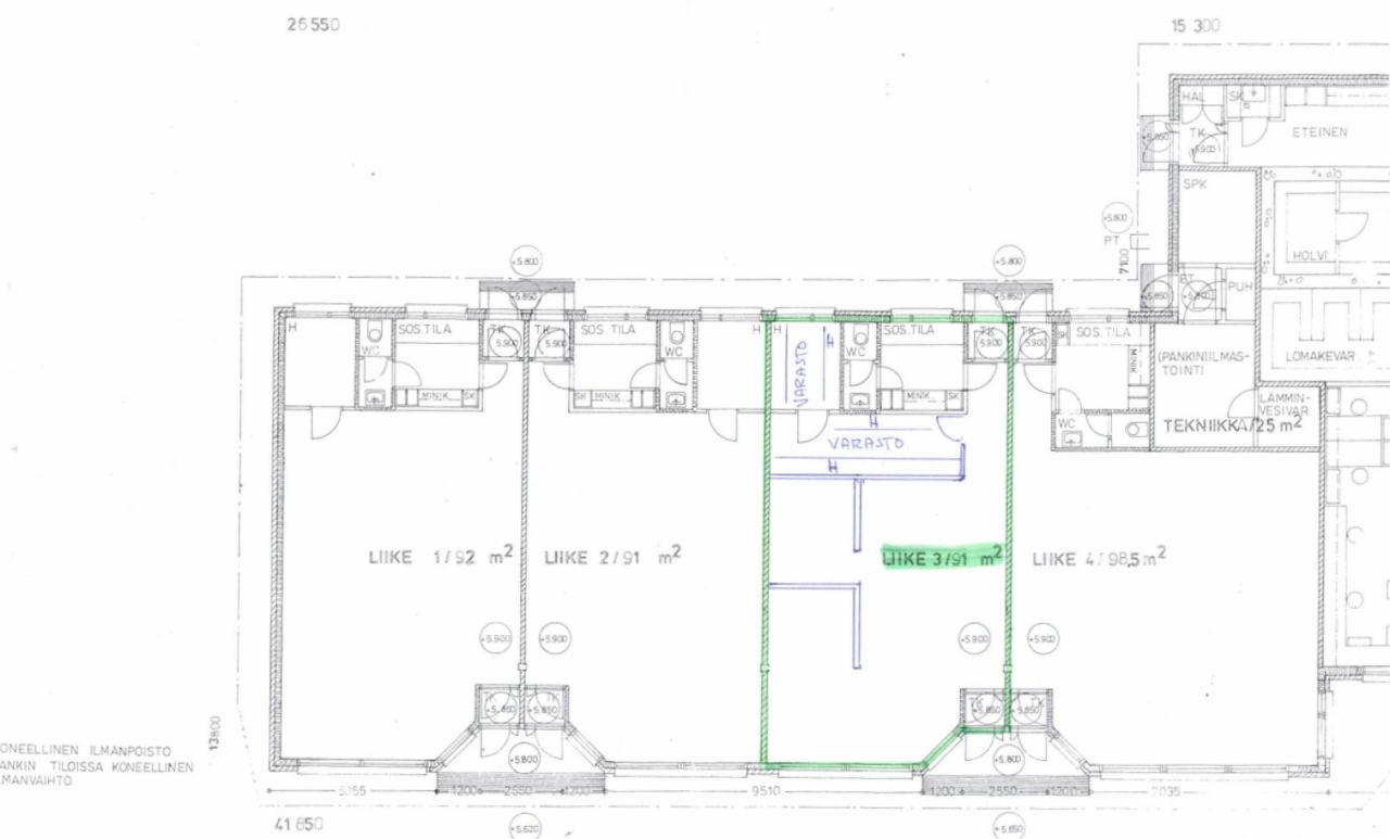
2 valoisaa katutason toimistotilaa Torniossa
Kerroksia rakennuksessa on 1.
Lämmitysmuodot ovat kaukolämpö, ilmalämpöpumppu.
Vuokrattavana kaksi erillistä, peilikuvana toteutettua toimistotilaa Torniossa, Kemintiellä erinomaisella sijainnilla. Tilat soveltuvat monipuolisesti toimisto- tai päivätoimintakäyttöön ja ovat helposti muunneltavissa oman tarpeen mukaan. Molempiin tiloihin esteetön kulku!
Vuokra on 1000 €/kk / liiketila, sisältäen ALV 25,5 %.
Yrityksille vuokra on ALV-vähennyskelpoinen
Tilojen tiedot:
Koko: 91 m² (sis. liiketila, varasto ja sosiaalitilat)
Molemmissa tiloissa esteetön kulku
Lämmitys sisältyy vuokraan
Liiketila 2: varustettu ilmalämpöpumpulla
Liiketila 3: valmiiksi rakennettuja väliseiniä tilanjakoa helpottamaan
Molempiin tiloihin kuuluu 2 sähkötolppa paikkaa sisäpihalta.
Lisäedut:
Vuokranantajan kanssa mahdollista sopia viikkosiivouksesta erillisellä sopimuksella
Tilojen pintaremonttitoiveista voidaan keskustella ennen vuokrauksen alkua
Huippupaikka Tornion Kemintiellä, hyvä näkyvyys ja saavutettavuus.
Sopii erinomaisesti:
Toimistoksi
Päivätoimintaan
Moneen muuhun yritystoimintaan
Lisätietoja saat suoraa vuokranantajalta; Tiina Myllyneva, 040 539 8269, tiina.myllyneva@myllyneva.fi
Habita Finland Oy
Länsiranta 10 LH 1240 / Kauppakeskus Rajalla I På Gränsen , 95400 Tornio
Näytä puhelinnumero
+358 40 079 6607
Jasmine Alamäki
Näytä puhelinnumero
+358 44 9785430
## Kiinteistönvälittäjä sinua varten
Teemme töitä suurella sydämellä myyjän ja ostajan tarpeiden täyttämiseksi. Meillä on vankka paikallistuntemus sekä pitkä kokemus kiinteistönvälityksestä. Pidämme sinut ajan tasalla asunnon osto- ja myyntiprosessin edetessä. Sinun ei tarvitse huolehtia paperityöstäkään, sillä me hoidamme kaikki. Vain muuttolaatikoiden pakkaus jää sinun hoidettavaksi.
## Toimisto keskellä Torniota
Palvelemme sinua näkyvällä paikalla Tornion keskustassa. Poikkea tutustumaan henkilökuntaamme ja palveluihimme kauppakeskus Rajalla, På Gränsenillä, Citymarketin ja Glitterin välisessä liiketilassa.
## Tornio tarjoaa laadukasta asumista
Tornio on onnellisten asukkaiden, uudistuvien palveluiden ja menestyvien yritysten vetovoimainen rajakaupunki. Torniossa voit asua meren rannalla, lohijoen varrella tai maaseudun rauhassa. Olemme osa Lappia ja Tornionlaaksoa, Perämerenkaarta ja Pohjoiskalottia, Barentsia ja Eurooppaa.
