Vuokrataan toimistotilat - Helsinki
Köydenpunojankatu 2 a, Kamppi, keskusta, 00180 Helsinki #10838061
Rakennuksen kuvaus:
Hietalahden torin laidalla ja meren ääressä sijaitseva vanha kiinteistö, jonka tilat ovat saneerattu nykyaikaisiksi toimitiloiksi. Seitsemän kerrosta täynnä persoonallisia toimistotiloja ja siksi vuokralaisina onkin paljon luovan alan yrityksiä. Keskustan ratikkayhteydet samassa korttelissa ja Ruoholahden metroasemalle on noin 800 metriä. Hietalahdessa ja Punavuoressa aivan talon läheisyydessä on runsaasti lounasta tarjoavia ravintoloita.
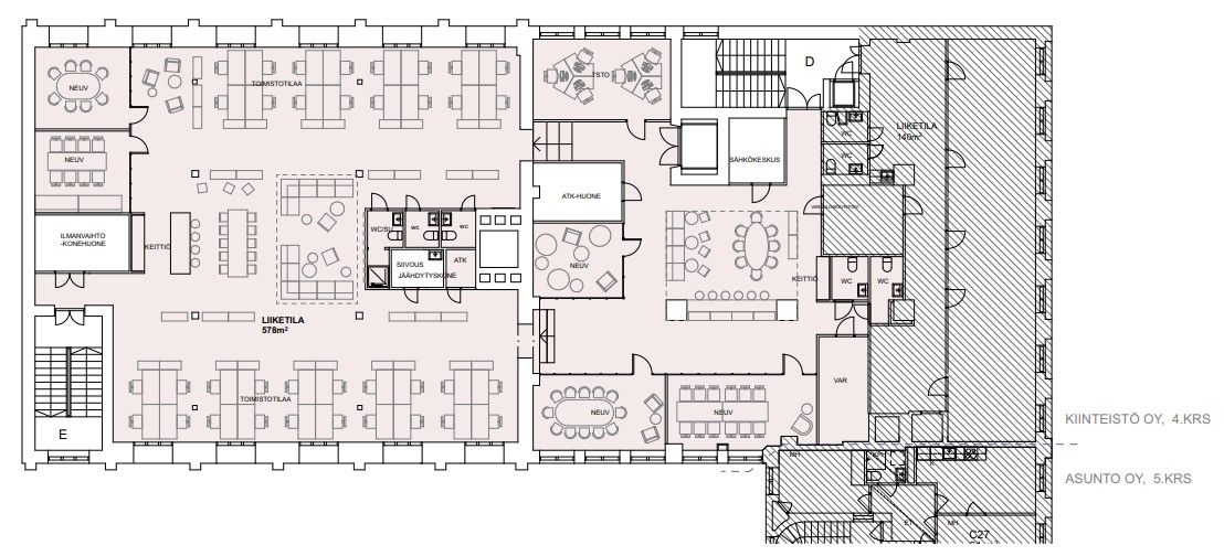
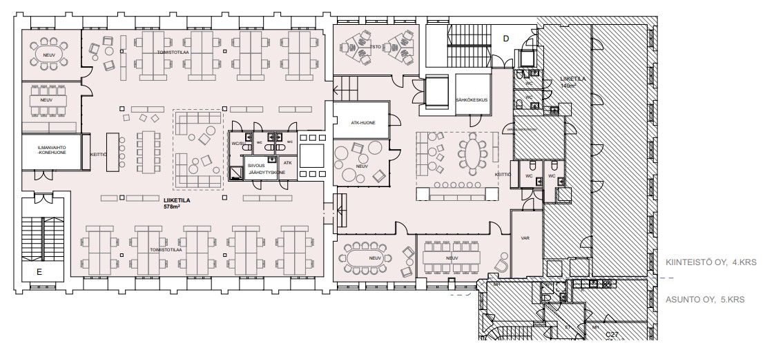
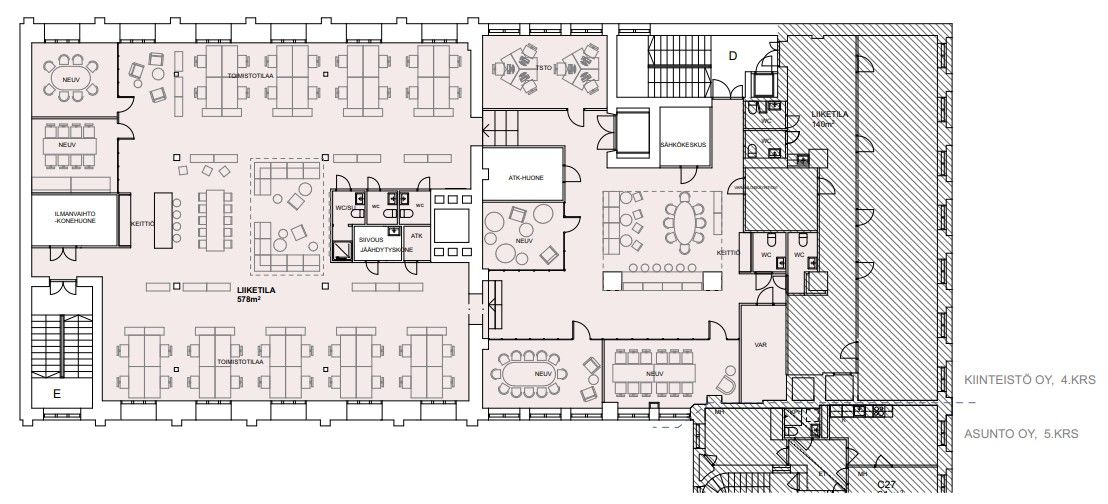
Tilan kuvaus:
Hyväkuntoinen ja persoonallinen toimistotila neljännessä kerroksessa, jossa avotoimistoa sekä neuvottelutilaa. Loftmaisessa toimistossa oma suihku sekä neljä wc:tä. Upea sijainti meren rannalla!
Kerros: 4
