Vuokrataan liiketilat - Helsinki
Paciuksenkatu 27, Meilahti, 00270 Helsinki #10838051
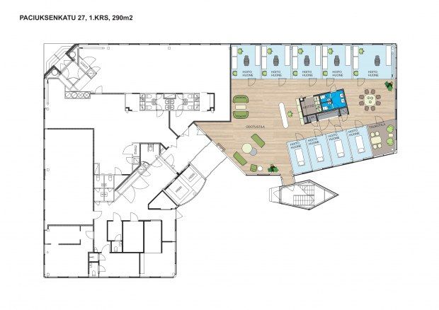
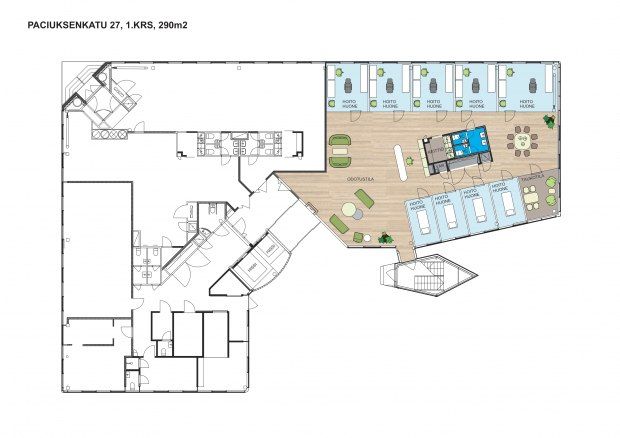
Liiketilaa Meilahdesta
Osoite
Paciuksenkatu 27, 00270 Helsinki
Tilatyyppi
Liiketilaa
290 m2
Muuta
Vuokrattavana 290 m² liiketilaa katutasossa Helsingin Meilahden alueella. Tilakokonaisuus sijaitsee hyvällä paikalla lähellä palveluita ja liikenneyhteyksiä.
Tila remontoidaan vuokralaisen tarpeiden mukaan, mikä mahdollistaa toimivan ratkaisun erilaisiin liiketoiminnan tarpeisiin. Tila soveltuu mainiosti esimerkiksi fysioterapiakäyttöön tai kauneushoitolaksi.
Rakennustöiden arvioitu valmistumisaika on alkuvuodesta 2026.
Tervetuloa tutustumaan, varaathan välittäjältä oman esittelyaikasi. Voit kysyä meiltä myös muita sopivia vaihtoehtoja, kauttamme löydät juuri Teidän tarpeisiinne sopivat tilat. Palvelumme on tilanhakijalle veloitukseton!
Tila remontoidaan vuokralaisen tarpeiden mukaan, mikä mahdollistaa toimivan ratkaisun erilaisiin liiketoiminnan tarpeisiin. Tila soveltuu mainiosti esimerkiksi fysioterapiakäyttöön tai kauneushoitolaksi.
Rakennustöiden arvioitu valmistumisaika on alkuvuodesta 2026.
Tervetuloa tutustumaan, varaathan välittäjältä oman esittelyaikasi. Voit kysyä meiltä myös muita sopivia vaihtoehtoja, kauttamme löydät juuri Teidän tarpeisiinne sopivat tilat. Palvelumme on tilanhakijalle veloitukseton!
Vapautuu
Kysy
Kerros
1
Ota yhteyttä
Tuloskiinteistöt Oy
Rikhardinkatu 2 B 5, 00130 Helsinki
Näytä puhelinnumero
(09) 6841 620
Nina Meyke
Commercial Real Estate Advisor
Näytä puhelinnumero
+358 50 466 1519
Jorma Ryynänen
Commercial Real Estate Advisor LKV, LVV
Näytä puhelinnumero
+358 40 708 4064
Pyydä lisätietoa
