Vuokrataan toimistotilat - Espoo
Vaisalantie 6C, Otaniemi, 02130 Espoo #10837984
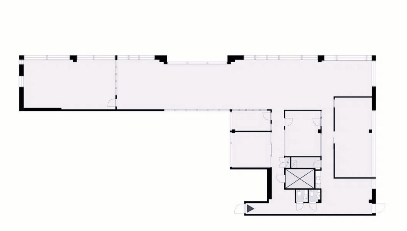
Vuokrattavana valoisaa, muuttovalmista toimistotilaa kuudennesta kerroksesta. Tilassa on oma keittiö, wc-tilat sekä neuvottelutilaa ja työhuoneita.
-Henkilöstöravintola
-Vuokrattavia neuvottelutiloja
-Auditorio
-Kuntosali
-Bussi
-Oma auto
Näkyvällä paikalla
Jaettavissa
Hissi
Lastauslaituri
REALIUM OY LKV
Tammasaarenkatu 1, 00180 Helsinki
Vaihde:
Näytä puhelinnumero
010 326 346
Tuomo Mäkelä
tuomo.makela@realium.fi
p.
Näytä puhelinnumero
044 050 1158
Joel Keto
joel.keto@realium.fi
p.
Näytä puhelinnumero
045 317 0330
KAIKKI TILAVAIHTOEHDOT KERRALLA!
SOITA - MEILAA JA TILAA NÄYTTÖ!
Ilmainen palvelu tilanhakijoille.
Kartoitamme parhaat tilavaihtoehdot.
Kaikki kohteet eivät ole netissä.
