Vuokrataan liiketilat - Helsinki
Paciuksenkatu 27, Meilahti, 00270 Helsinki #10837979
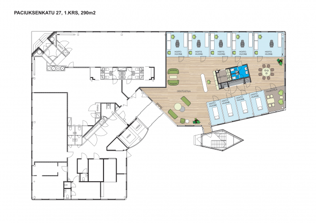
Meilahden Paciuksenkadulta on vapautumassa katutasosta 290 m² liiketilaa, joka soveltuu mainiosti esimerkiksi fysioterapiakäyttöön tai vaikkapa kauneushoitolaksi. Liiketila joustaa pienemmän tai isomman toimijan käyttöön, sillä kyseistä tilaa on mahdollista yhdistää myös viereisten tilojen kanssa jopa 523 m² kokonaisuudeksi. Tilat remontoidaan vuokralaisen tarpeiden mukaan.
Paciuksenkatu 27 on näyttävän näköinen ja helposti saavutettava kiinteistö Meilahdessa. Kiinteistön ylimmässä kerroksessa on vuokrattavissa neuvottelu-/saunatila vuokralaisten käyttöön. Lisäksi viereisissä kiinteistöissä toimii kolme erilaista lounasravintolaa ja päivittäistavarakauppa sijaitsee vastapäätä.
Kiinteistöön on sujuvat kulkuyhteydet niin julkisilla kulkuvälineillä kuin autolla. Muun muassa raitiovaunu 4 ja useat bussit pysähtyvät ihan viereen ja saavutettavuus autolla esimerkiksi Espoosta päin on nopea - ilman keskustan ruuhkia! Pysäköintitilaa on autohallissa sekä kiinteistön pihalla. Paciuksenkadun toimitilat ovat joustavat, ja niitä voidaan yhdistellä sekä jakaa käsittämään teille sopiva palanen.
Me Croisettella autamme teitä löytämään teille parhaat tilat! Olemme puolueettomia asiantuntijoita ja tunnemme toimitilamarkkinat, talot sekä tilat vankalla kokemuksella. Meillä on välityksessä kaikki toimitilat ja tiedämme niiden alustavat vuokratasot.
Tehtävämme on tehdä toimitilahaustanne onnistunutta ja helppoa. Saamme palkkiomme kiinteistönomistajalta, joten sinulle palvelumme on täysin maksuton. Jos kiinnostuit, ota yhteyttä sähköpostitse osoitteeseen vuokraus@croisette.fi tai soita numeroon +358 4 00585857.
Croisette Real Estate Partner
Erottajankatu 5 A 6, 00130 Helsinki
Näytä puhelinnumero
+358 400 585 857
Croisette Vuokraus
Näytä puhelinnumero
+358400585857
