Vuokrataan toimistotilat - Helsinki
Kaivokatu 10, Keskusta, 00100 Helsinki #10837935
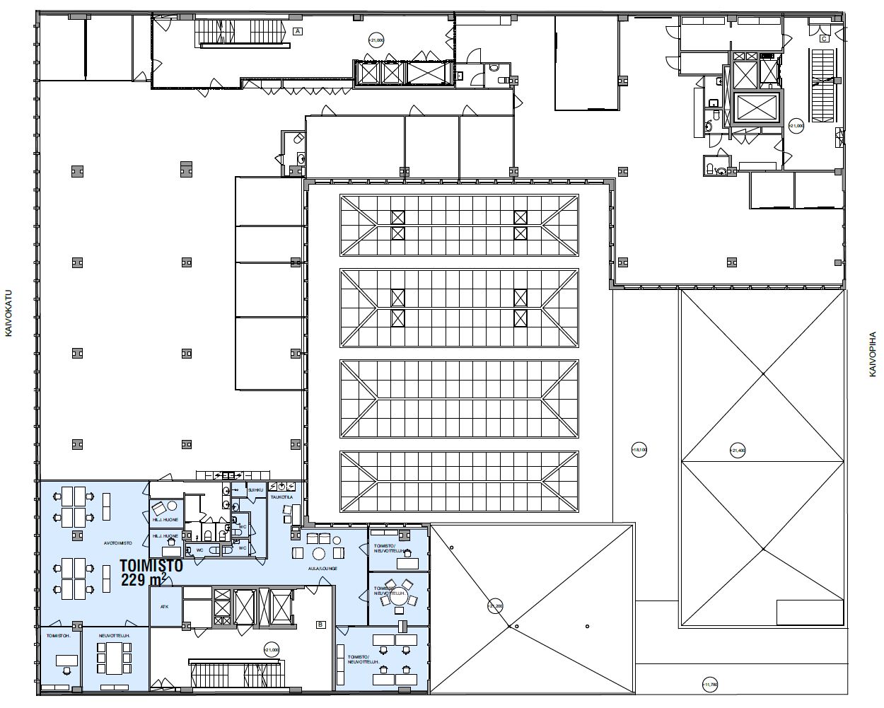
KAIVOKATU 10 - toimistotila 229m2
Tästä modernista ja valoisasta toimistotilasta löytyy työskentelytiloja hyvin monentyyppiseen tarpeeseen.
Upeat näkymät suoraan Helsingin päärautatieasemalle rakennuksen 6. kerroksesta.
Tilakokonaisuuteen kuuluu avotilan lisäksi, pari isompaa neuvottelutilaa, kolme pienempää toimisto-/neuvottelutilaa ja kaksi puhelu-/hiljaista tilaa.
Lisäksi taukokeittiö, kolme WC-tilaa ja suihku pyöräilijöille.
Mikäli tila ei nykyisellä huonejaolla tai pintamateriaaleinaan vastaa yrityksenne tarpeita, niin räätälöidään tästä juuri teille sopiva toimistotila Helsingin keskeisimmältä sijainnilta!
Lisätiedot ja kohdenäytöt: p. 040 7070 321 / HeikkiKerros: 6
CRE PREMISES
Puh. Näytä puhelinnumero 020 7290 710
Vantaankoskentie 14
01670 VANTAA
