Vuokrataan toimistotilat - Espoo
Vaisalantie 2-6, Otaniemi, 02130 Espoo #10837934
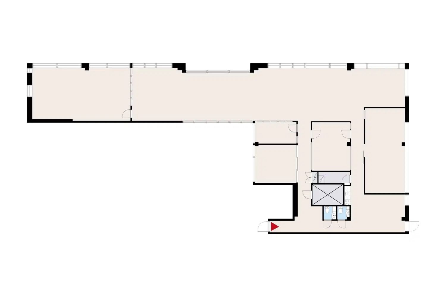
Vuokrattavana edustava toimitila ylimmässä kerroksessa, jossa toimiva ja selkeä pohjaratkaisu. Tilassa on runsaasti avotilaa, useita huoneita, oma keittiö sekä wc-tilat. Tila on valoisa ja tilava, ja se voidaan yhdistää viereiseen 215 neliön tilaan. Ohessa havainnollistavia kuvia kiinteistöstä.
Innopoli 3 tarjoaa monipuolista palvelua, kuten toimisto- ja aulapalvelut, edustavat kokous- ja neuvottelutilat, auditorio, edustussauna ja ravintolapalvelut. Lisäksi henkilöstön käytössä ovat hyvinvointipalvelut kuten kuntosali ja sauna. Näistä palveluista voi valita juuri sellaisen paketin, kuin haluaa.
Uudenaikaiset tilat ovat avaria, valoisia ja tarvittaessa helposti muokattavissa käytön aikana tilatarpeiden muuttuessa. Kaikkiin tiloihin on nopeat valokaapeliyhteydet sekä koko kiinteistön kattava wlan- lähiverkko.
Kiinteistön omassa hallissa on runsaasti autohallipaikkoja sekä autonpesupalvelut. Asiakaspaikat sijaitsevat pihakannella.
Lisätietoja numerosta 020 7290 710. Lisää kohteita osoitteessa premises.fi.
Kohteella ei ole lain edellyttämää energiatodistusta tai energialuokka ei tiedossa.Kerros: 6
Metro 850 m
Raitiovaunu 180 m
Bussi 200 m
Juna-asema 5 km
Lentokenttä 22 km
CRE PREMISES
Puh. Näytä puhelinnumero 020 7290 710
Vantaankoskentie 14
01670 VANTAA
