Vuokrataan toimistotilat - Helsinki
Malminkatu 16, Kamppi, 00100 Helsinki #10837907
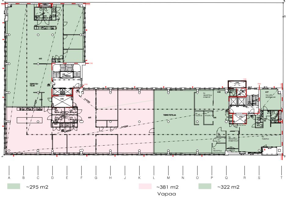
Vuokrataan 6. kerroksen toimistotila Kampissa Kampintorin vieressä. Tila on joustavasti muokattavissa vuokralaisen tarpeen mukaan. Ohessa havainnekuvia tiloista.
Keskellä huippuluokan liikenneyhteyksiä sijaitseva Voimatalo tarjoaa poikkeukselliset mahdollisuudet tilojen muokkaamiseen käyttäjän yksilöllisten mieltymysten mukaisiksi. Kahdeksan kerrosta ja yhteensä noin 7 000 m2 mahdollistavat monenkokoisen ja -tyylisen vuokralaisen tilatarpeiden täyttämisen.
Voimatalon sijainti on liikenneyhteyksiä ajatellen erinomainen: metro ja bussiterminaali ovat naapurissa sekä rautatieasema kivenheiton päässä. Länsiväylän alkupää ja Mannerheimintie ovat muutaman korttelin päässä. Rakennuksessa on oma autohalli, josta on vuokrattavissa jonkin verran autopaikkoja. Lähialueen parkkitalojen tarjonta on myös runsasta.
Lisätiedot 020 7290 710 ja lisää kohteita premises.fi
Kohteella ei ole lain edellyttämää energiatodistusta tai energialuokka ei tiedossa.Kerros: 6
CRE PREMISES
Puh. Näytä puhelinnumero 020 7290 710
Vantaankoskentie 14
01670 VANTAA
