Vuokrataan tuotantotilat, varastotilat - Jyväskylä
Vesangantie 1, 40700 Jyväskylä #10837901
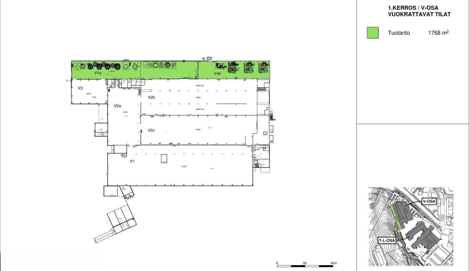
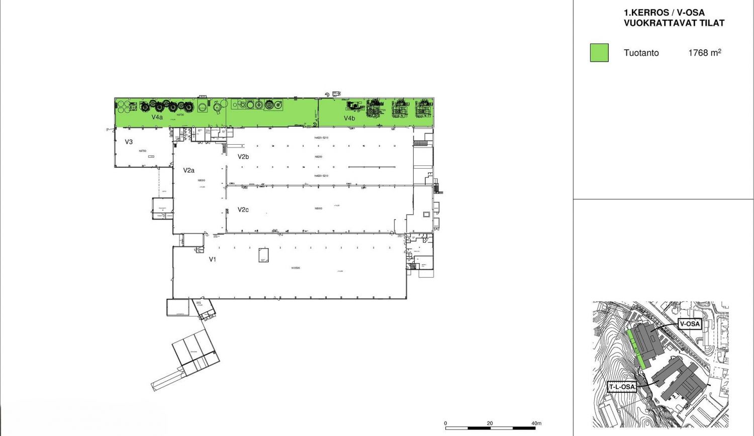
Tuotantotila (V4a ja V4b) joka soveltuu esimerkiksi kaluston huoltoon ja säilytykseen tai jopa pesulatoimintaan. Tilayhdistelmään on valmiina maatason nosto-ovi ja läpiajettavuus on mahdollista toteuttaa.
Tilan maksimikorkeus on yli 9 metriä. Rakennuksesta on mahdollista vuokrata laajempi tilakokonaisuus toimisto- ja sosiaalitilojen kanssa.
Ohessa havainnollistavia kuvia.
Rautpohjan alueella Jyväskylä keskustan kupeessa teollis-tuotannollinen kiinteistökokonaisuus sisältää toimisto-, tuotanto- ja varasto/hallitiloja, jotka ovat jaettavissa eri kokonaisuuksiin.
Lisätietoja numerosta 020 7290 710. Lisää kohteita osoitteessa www.premises.fi.
Kohteella ei ole lain edellyttämää energiatodistusta tai energialuokka ei tiedossa.
Tämän kohteen omistaa Logicor Oy.Kerros: 1
CRE PREMISES
Puh. Näytä puhelinnumero 020 7290 710
Vantaankoskentie 14
01670 VANTAA
