Vuokrataan tuotantotilat, varastotilat - Jyväskylä
Vesangantie 1, 40700 Jyväskylä #10837897
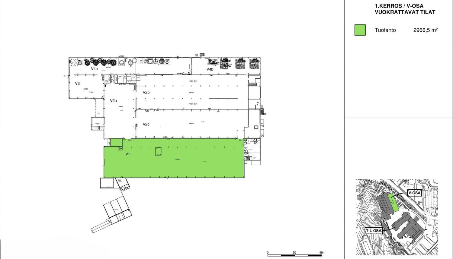
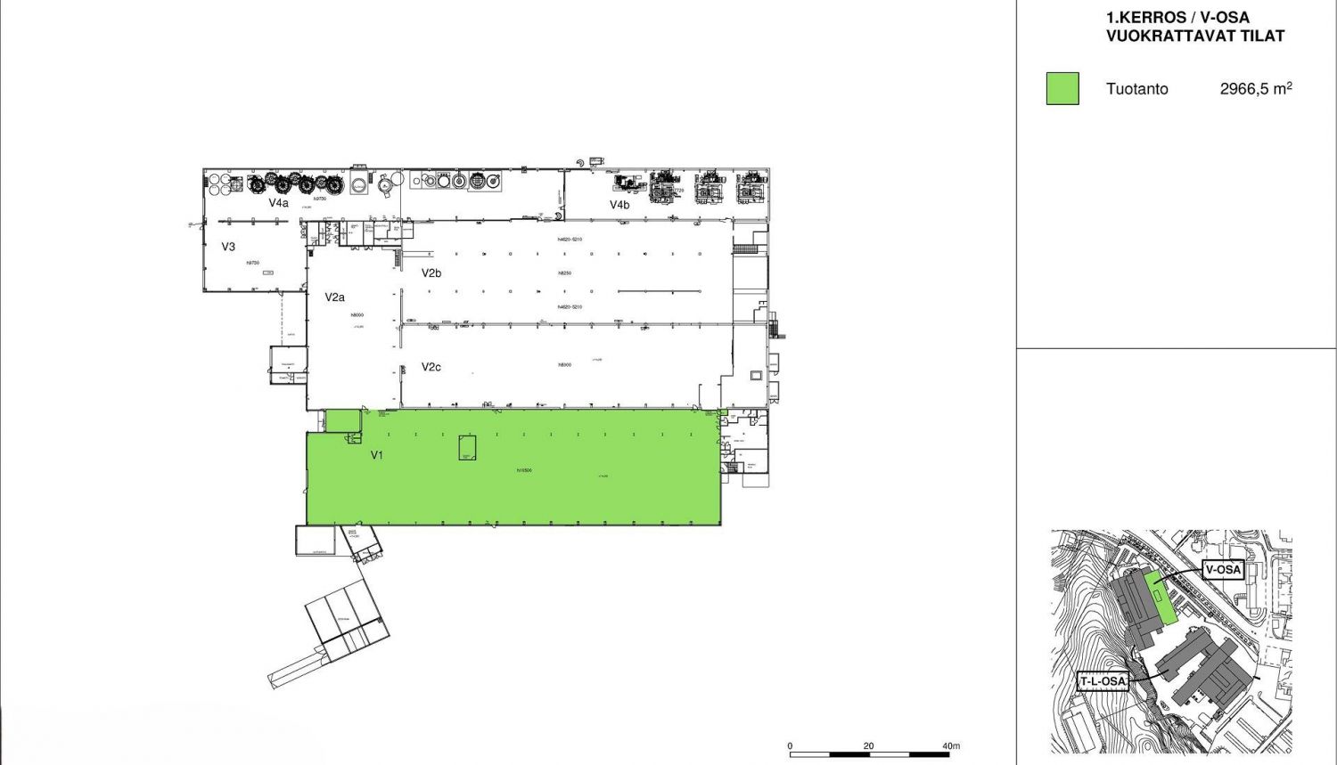
Vuokrattavana korkeaa varasto- ja tuotantotilaa (V1), jonka välittömässä läheisyydessä on sisäyhteydellä saavutettavat toimisto- ja sosiaalitilat henkilöstön käyttöön. Tila soveltuu erinomaisesti tuotannolliseen toimintaan ja logistiikkaan.
Tilassa on maatason nosto-ovet, ja mahdollisuus asentaa lisänosto-ovia sivuseinälle. Käytettävissä on toimivat siltanosturit sekä merkittävä nostinkapasiteetti, joka tukee vaativia käyttötarpeita. Tilan maksimikorkeus on noin 10 metriä, mikä mahdollistaa tehokkaan tilankäytön ja korkeavarastoinnin.
Rautpohjan alueella Jyväskylä keskustan kupeessa teollis-tuotannollinen kiinteistökokonaisuus sisältää toimisto-, tuotanto- ja varasto/hallitiloja, jotka ovat jaettavissa eri kokonaisuuksiin.
Lisätietoja numerosta 020 7290 710. Lisää kohteita osoitteessa www.premises.fi.
Kohteella ei ole lain edellyttämää energiatodistusta tai energialuokka ei tiedossa.
Tämän kohteen omistaa Logicor Oy.Kerros: 1
Siltanosturi
CRE PREMISES
Puh. Näytä puhelinnumero 020 7290 710
Vantaankoskentie 14
01670 VANTAA
