Vuokrataan tuotantotilat, varastotilat - Jyväskylä
Vesangantie 1, 40700 Jyväskylä #10837894
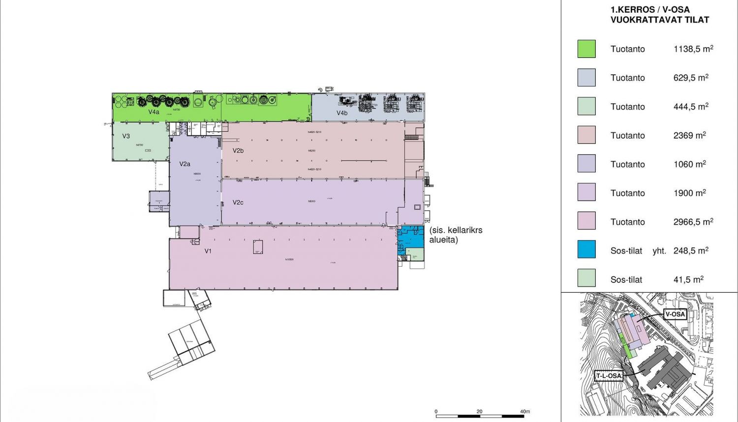
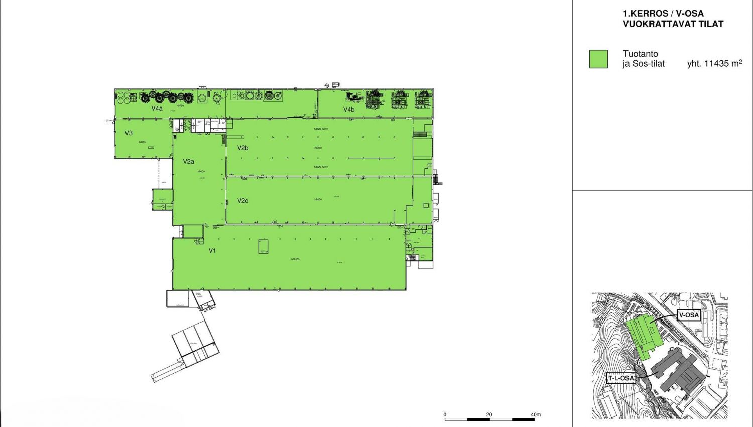
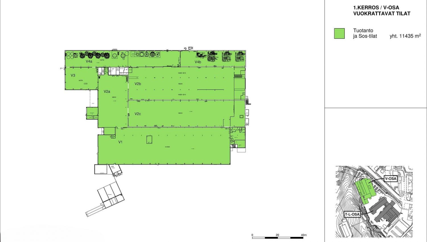
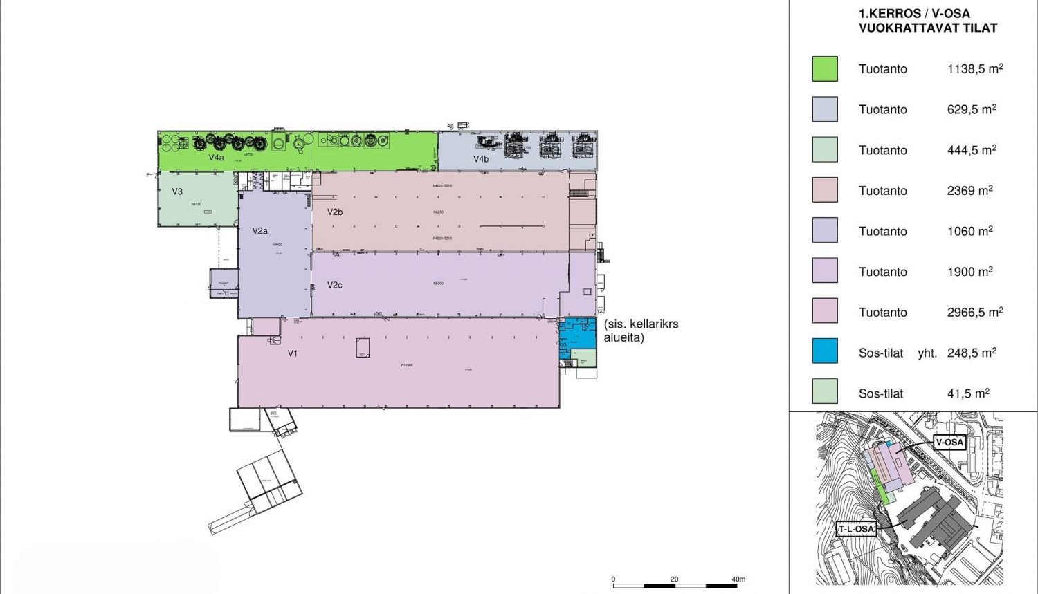
Vuokrattavana teollisuus- ja tuotantokiinteistökokonaisuus, joka sisältää joustavasti muunneltavia toimisto-, tuotanto- ja varastotiloja. Tilat voidaan jakaa eri kokonaisuuksiin tarpeen mukaan. Henkilöstön käyttöön on varattu tauko- ja pukuhuonetilat.
Kyseessä on kokonainen rakennus aidatulla tontilla, jossa on maatason nosto-ovet ja mahdollisuus läpivirtaustilojen toteuttamiseen suurimpaan osaan tiloista. Kiinteistössä on merkittävä nostinkapasiteetti sekä vahva sähköinfrastruktuuri, joka tukee vaativaa tuotannollista toimintaa. Tilojen korkeus vaihtelee, ja maksimikorkeus on jopa 10 metriä.
Kohde sijaitsee Rautpohjan alueella, lähellä Jyväskylän keskustaa hyvien liikenneyhteyksien päässä.
Lisätietoja numerosta 020 7290 710. Lisää kohteita osoitteessa www.premises.fi.
Kohteella ei ole lain edellyttämää energiatodistusta tai energialuokka ei tiedossa.
Tämän kohteen omistaa Logicor Oy.Kerros: K. 1-2
CRE PREMISES
Puh. Näytä puhelinnumero 020 7290 710
Vantaankoskentie 14
01670 VANTAA
