Vuokrataan toimistotilat - Helsinki
Kaivokatu 10, Keskusta, 00100 Helsinki #10837888
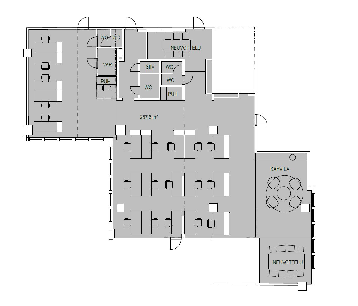
KAIVOKATU 10 - toimistotila 257,5m2
Tämä tyylikäs toimistotila sijaitsee Kaivotalon 3. krs.
Tila on pääosin avonaista ja lisäksi siitä löytyy pari neuvottelutilaa, kaksi puhelutilaa, useita WC-tiloja ja reilun kokoinen taukokeittiö.
Lisätiedot ja kohdenäytöt: p. 040 7070 321 / HeikkiKerros: 3
Osoite
Kaivokatu 10, 00100 Helsinki
Tilatyyppi
Toimistotilaa
257,5 m2
Kulkuyhteydet
KAIKKI JULKISEN LIIKENTEEN PALVELUT VIERESSÄ
Ota yhteyttä
CRE PREMISES
Puh. Näytä puhelinnumero 020 7290 710
Vantaankoskentie 14
01670 VANTAA
Pyydä lisätietoa
