Vuokrataan toimistotilat - Helsinki
Kaivokatu 10, Keskusta, 00100 Helsinki #10837886
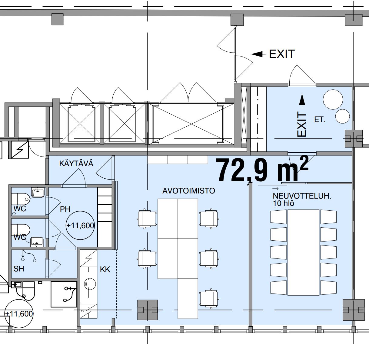
KAIVOKATU 10 - toimistotila 72m2
Tämä kompakti ja valoisa toimistotila sijaitsee Kaivotalon 3. krs.
Kokonaisuudessa avotilan lisäksi reilun kokoinen neuvottelutila ja avokeittiö.
Lisätiedot ja kohdenäytöt: p. 040 7070 321 / HeikkiKerros: 3
Osoite
Kaivokatu 10, 00100 Helsinki
Tilatyyppi
Toimistotilaa
72,9 m2
Kulkuyhteydet
KAIKKI JULKISEN LIIKENTEEN PALVELUT VIERESSÄ
Ota yhteyttä
CRE PREMISES
Puh. Näytä puhelinnumero 020 7290 710
Vantaankoskentie 14
01670 VANTAA
Pyydä lisätietoa
