Vuokrataan toimistotilat - Oulu
Hoitajanrinne 1, 90220 Oulu #10837884
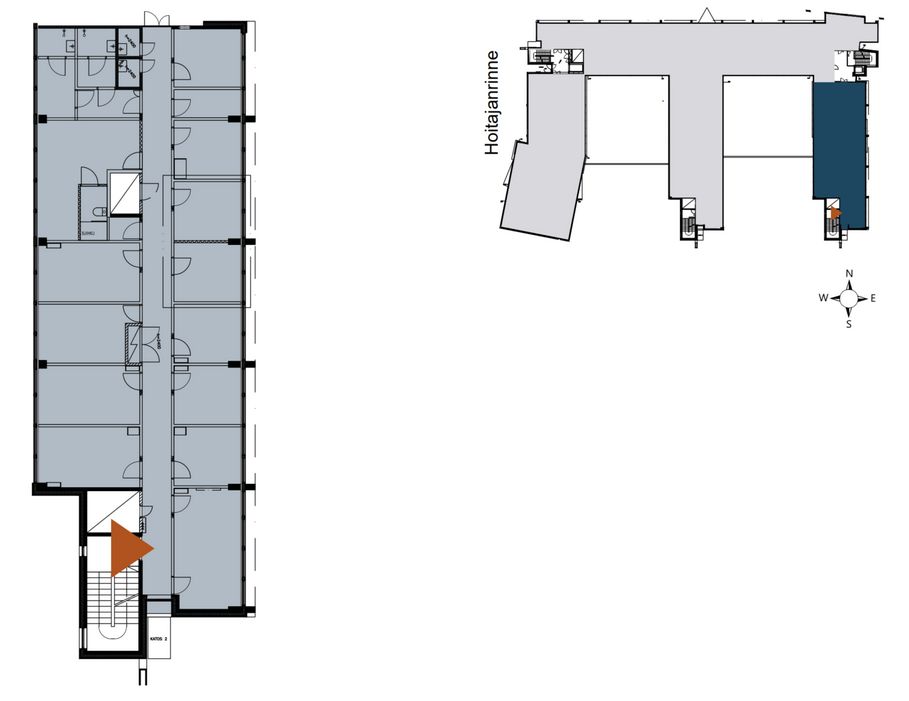
Vapaana 249 neliömetrin toimistotila 2. kerroksessa, osoitteessa Aapistie 1 Oulu.
Tila on monikäyttöinen ja soveltuu hyvin erilaisiin yritystoimintoihin.
Keskeinen sijainti takaa helpon saavutettavuuden.
Tilaa voidaan muokata joustavasti tarpeiden mukaan.
Lisätietoja numerosta 020 7290 710. Lisää kohteita osoitteessa www.premises.fi.
Energialuokka E2013Kerros: 2
Osoite
Hoitajanrinne 1, 90220 Oulu
Tilatyyppi
Toimistotilaa
249 m2
Ota yhteyttä
CRE PREMISES
Puh. Näytä puhelinnumero 020 7290 710
Vantaankoskentie 14
01670 VANTAA
Pyydä lisätietoa
