Vuokrataan liiketilat - Helsinki
Kaisaniemenkatu 1, Kluuvi, 00100 Helsinki #10837870
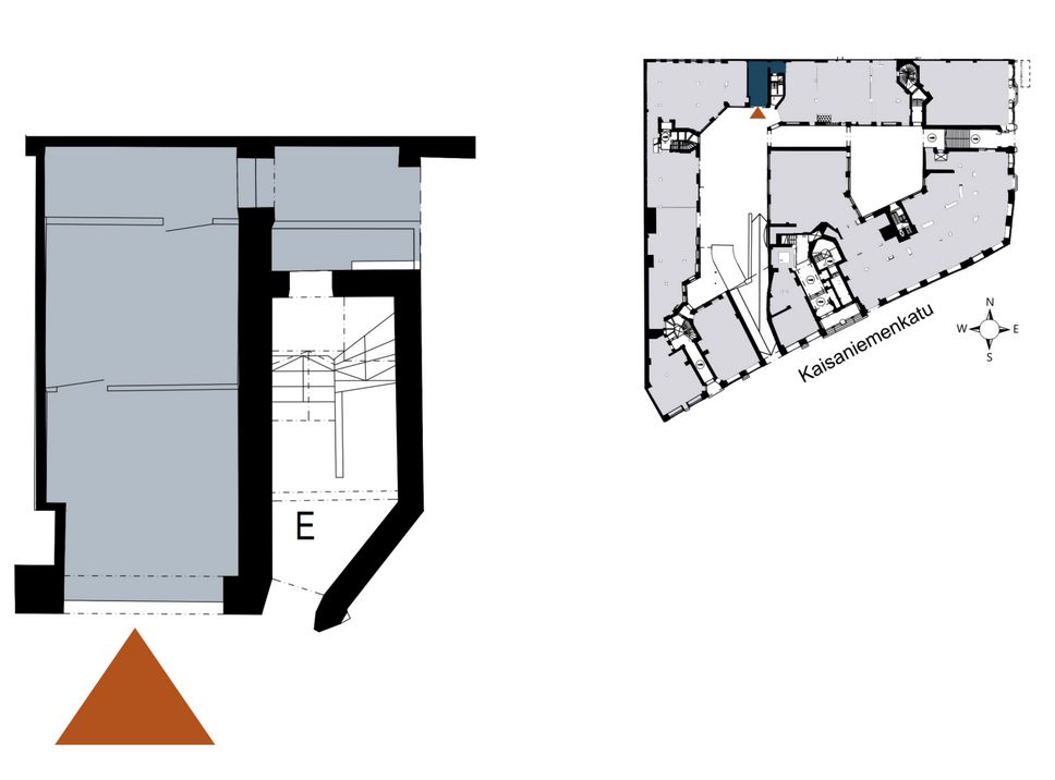
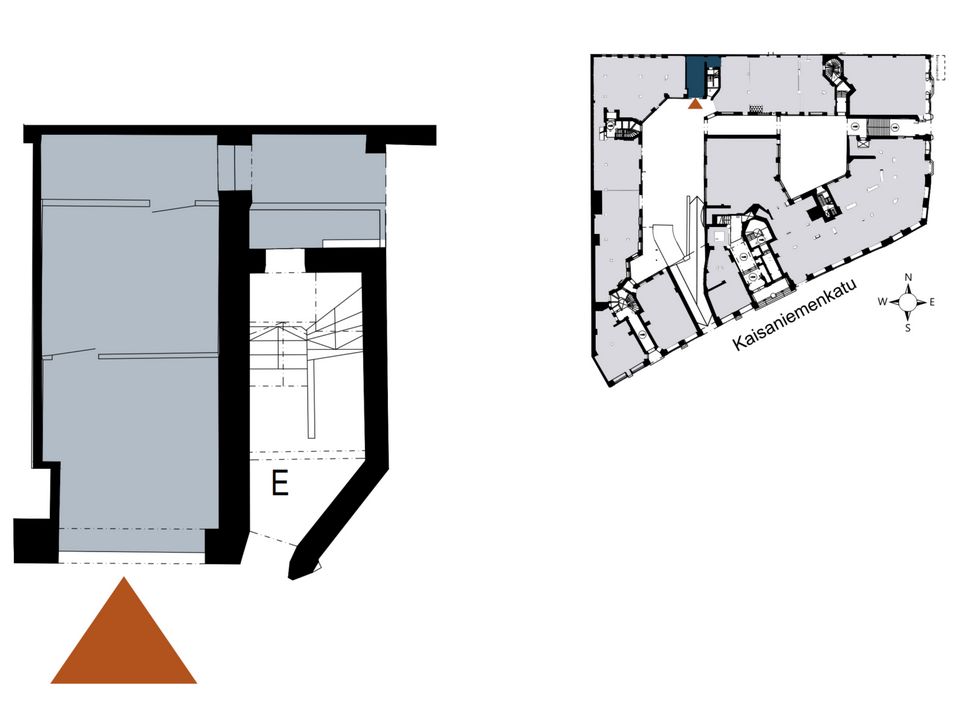
Vuokrataan ihana kampaamona toiminut tila sisäpihalla.
Tämä lähes sata vuotta vanha kiinteistö sijaitsee Helsingin ydinkeskustassa, monipuolisten palveluiden äärellä ja erinomaisten julkisten liikenneyhteyksien varrella.
Kellaritiloihin on hiljattain uusittu suihku- ja pukutilat.
Lisäksi tiloihin on rakennettu tilavat ja turvalliset säilytysmahdollisuudet polkupyörille sekä latausmahdollisuus sähköpyörille.
Ota yhteyttä ja sovi esittely.
Lisätietoja numerosta 020 7290 710. Lisää kohteita osoitteessa www.premises.fi.
Energialuokka G2007Kerros: 1
CRE PREMISES
Puh. Näytä puhelinnumero 020 7290 710
Vantaankoskentie 14
01670 VANTAA
