Myydään liiketilat - Hyvinkää
Uudenmaankatu 8-10, Keskusta, 05800 Hyvinkää #10837776
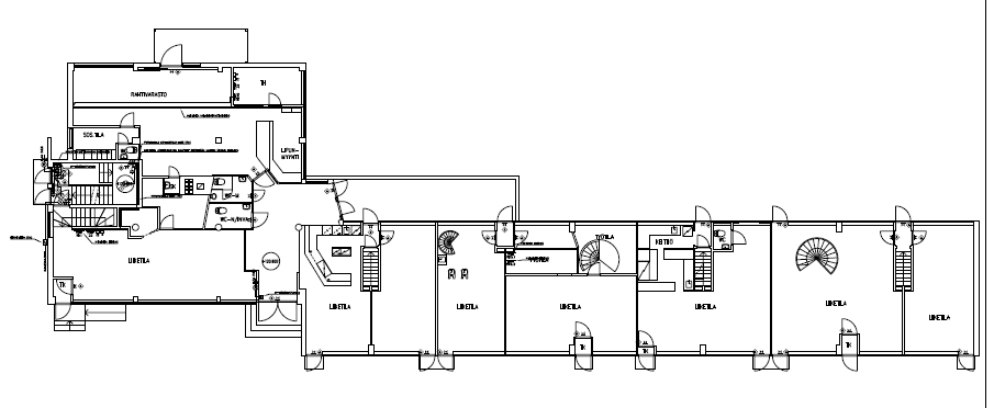
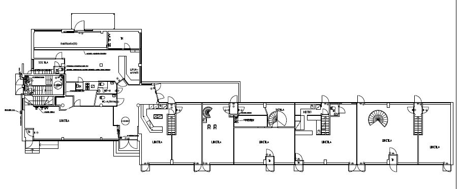
Remontoitu pieni myymälätila ja kellarivarasto keskeisellä paikalla.
Katutason tilan jakava väliseinä purettavissa.
Lisätiedot ja esittelyt:
Jussi Hannukkala
0400 363025
jussi.hannukkala@johacon.fi
Osoite
Uudenmaankatu 8-10, 05800 Hyvinkää
Tilatyyppi
Liiketilaa
21,5 m2
Pohjapiirros
Myyntihinta
24000 €
Kiinteistö
Auto-Linjala Oy
Muuta
Vesiennakko 1 €/kk/liikehuoneisto
Lisätietoa saneerauksista
2024 Korvausilmaventtiilit korkean osan ikkunoihin. 2023 Palokatkojen tiivistykset sähköpääkeskus ja porraskäytävä, Sähköjen määräaikaistarkastus. 2022 Katolle kulkusilta ja lumiesteet matalan osan etu- ja takapuolelle. 2021 Julkisivun ja sokkelin maalaus. 2020 kunnan sadevesikaivoon liittyminen. Rakennettu uusi sadekaivojärjestelmä. Katon maalaus ja paikkaustyö. 2021 julkisivun ja sokkelin maalaus. 2022 katolle kulkusilta ja lumiesteet. 2016 hulevesien ohjaus Hyvinkään kaupungin kunnallistekniikkaan, pihakiveys uusittu. 2015 kolmannen kerroksen viemäri uusittu aulan 2 wc:ltä pintavetona kuiluun. 2013 viemärit sukitettu, käyttövesiputkisto uusittu, 1. kerrokseen vesimittarit. huoneistoihin tuotu uudet sähkösyötöt ja ryhmäkeskukset uusittu. 2011 sähköpääkeskus uusittu. 2010 kaukolämpölaitteisto uusittu. 2009 lvv-kuntotutkimus ja asbestikartoitus tehty, jätepisteeseen uusi astia. 2008 kuntoarvio.
Vapautuu
Kysy
Kerros
1 / 3
Energiatehokkuusluokka
F2013
Ota yhteyttä

Johacon LKV
Riihimäenkatu 2
05900 HYVINKÄÄ
Näytä puhelinnumero
0400 353 920
Hannukkala Jussi
Yrittäjä, LKV
Näytä puhelinnumero
0400363025
Pyydä lisätietoa