Vuokrataan toimistotilat - Espoo
Lars Sonckin kaari 10-16, Perkkaa, 02600 Espoo #10837757
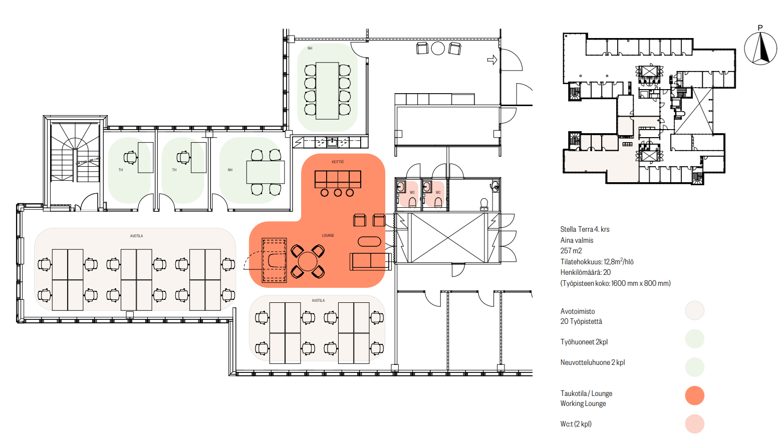
Tasokas viidennen kerroksen 257 m² Aina Valmis-toimisto
Osoite
Lars Sonckin kaari 10-16, 02600 Espoo
Tilatyyppi
Toimistotilaa
257 m2
Pohjapiirros
Kiinteistö
Valoisa ja avara 257 m² Aina Valmis-toimisto, josta avautuvat upeat näkymät. Kiinteistön palveluihin kuuluu muun muassa aulavastaanotto, lounasravintola, kuntosali sekä kattavat kokoustilat.
Tila on upea ja täysin remontoitu Aina Valmis -konseptin mukaisesti laadukkailla ja vastuullisilla materiaaleilla sekä toimivalla tilaratkaisulla vastaamaan nykytyöelämän vaatimuksia.
Stella Business Park sijaitsee erinomaisella paikalla liikenteen solmukohdassa Espoon Leppävaarassa. Yrityspuistoon kuuluu neljä taloa: Luna, Terra, Solaris ja Nova. Yrityspuiston modernit toimitilat sopivat kaikenkokoisille toimijoille ja tilat ovat helposti muunneltavissa omaa toimintaa tukeviksi.
Stella Business Parkissa ollaan panostettu laadukkaaseen palvelutarjontaan sekä työviihtyvyyttä ja hyvinvointia lisääviin ratkaisuihin. Yrityspuistossa on tarjolla muun muassa aula- ja postituspalvelu, avara kuntosali, juuri valmistunut auditorio, upeat kattokerroksen saunatilat, neuvottelukeskus, autopesula sekä lounasravintola. Yrityspuistossa on myös kaksi suurta parkkihallia, runsaasti parkkitilaa ja sähköauton latauspisteitä.
Stella sijaitsee erinomaisten kulkuyhteyksien päässä Pohjois- Euroopan suurimmassa teknologiakeskittymässä, jossa on erinomaiset kehittymis- ja toimintamahdollisuudet.
Kiinteistölle on myönnetty BREEAM In-Use ympäristösertifioinnin Very Good -taso.
Tila on upea ja täysin remontoitu Aina Valmis -konseptin mukaisesti laadukkailla ja vastuullisilla materiaaleilla sekä toimivalla tilaratkaisulla vastaamaan nykytyöelämän vaatimuksia.
Stella Business Park sijaitsee erinomaisella paikalla liikenteen solmukohdassa Espoon Leppävaarassa. Yrityspuistoon kuuluu neljä taloa: Luna, Terra, Solaris ja Nova. Yrityspuiston modernit toimitilat sopivat kaikenkokoisille toimijoille ja tilat ovat helposti muunneltavissa omaa toimintaa tukeviksi.
Stella Business Parkissa ollaan panostettu laadukkaaseen palvelutarjontaan sekä työviihtyvyyttä ja hyvinvointia lisääviin ratkaisuihin. Yrityspuistossa on tarjolla muun muassa aula- ja postituspalvelu, avara kuntosali, juuri valmistunut auditorio, upeat kattokerroksen saunatilat, neuvottelukeskus, autopesula sekä lounasravintola. Yrityspuistossa on myös kaksi suurta parkkihallia, runsaasti parkkitilaa ja sähköauton latauspisteitä.
Stella sijaitsee erinomaisten kulkuyhteyksien päässä Pohjois- Euroopan suurimmassa teknologiakeskittymässä, jossa on erinomaiset kehittymis- ja toimintamahdollisuudet.
Kiinteistölle on myönnetty BREEAM In-Use ympäristösertifioinnin Very Good -taso.
Pysäköinti
Runsaasti parkkipaikoja vuokrattavissa. Kohteella on oma parkkitalo, joka sijaitsee Terra-talon vieressä. Lisäksi Nova talossa parkkihalli, jossa palvelee myös autopesupalvelu.
Kulkuyhteydet
Hyvät kulkuyhteydet junalla, bussilla ja omalla autolla. Bussipysäkki 200 m, Juna-asema 400 m, Lentoasema 14,3 km
Vapautuu
Heti
Kerros
4 / 6
Energiatehokkuusluokka
Ei lain edellyttämää energiatodistusta
Näkyvällä paikalla
Hissi
Ota yhteyttä
ScanReal Oy LKV
Opus Business Park
Hitsaajankatu 24
00810 Helsinki
info@scanreal.fi
Puh:
Näytä puhelinnumero
020 730 8830
Sopivat toimitilat yhdellä otolla!
Kartoitamme toimitilatarpeesi ja etsimme yrityksellesi parhaiten sopivat vapaat toimitilat. Koska vuokranantajat maksavat palvelumme, on tämä yrityksellesi veloituksetonta.
OTA YHTEYTTÄ - SOVI NÄYTTÖ!
Kaikki kohteemme eivät ole netissä, kerro tilatarpeesi niin kartoitamme vaihtoehdot.
Palvelumme on tilanhakijalle ilmainen
Pyydä lisätietoa
