Vuokrataan toimistotilat - Kuopio
Kallaveden Konttuuri, Kirkkokatu 1, 70100 Kuopio #10837706
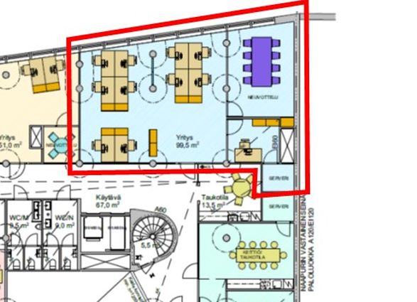
Kallaveden Konttuurin arvokas 1950-luvun kiinteistö on modernisoitu toimistorakennukseksi. Kiinteistö sijaitsee aivan Kallaveden rannalla. Viidennen kerroksen 99,5m2 täysin remontoitu toimitila. Näköalat avautuu ikkunoista Kallavedelle ja ympäristöön.
Yhteiskäytössä on kellarikerroksen kuntosali. Kiinteistössä on aulapalvelut, jotka hoitaa postitukset ja pakettiliikenteen sekä ohjaa asiakkaanne tiloihinne. Nämä palvelut sisältyy vuokraan. Kokoustilat varataan myös aulapalveluiden kautta ja kokoustilan käytöstä on erillisveloitus. Alakerrassa on lounasravintola ja ulkoterassi.
Toimisto on heti vapaa tila. Soita ja sovi tarkemmin esittelystä.
Hissi

Fine LKV
Olafin Koponen
Toimitilavuokraus, LKV
Näytä puhelinnumero
044 901 3173
olafin@finelkv.fi
Leväsentie 2, 70700 Kuopio
Yliopistonkatu 28, 40100 Jyväskylä
Toimin Fine LKV:lla toimitilavälittäjänä, otathan yhteyttä jos mietit mahdollisia muutostöitä tai esillä olevista toimitiloista ei löydy sitä mitä etsit. Selvitetään muut tila mahdollisuudet. Asiakaslähtöisyys on minulle tärkeää sekä asioiden sujuvuus. Ota yhteyttä, niin autan sinua mielelläni löytämään uusia tiloja.