Vuokrataan toimistotilat - Oulu
Hallituskatu 13-17 D 36, Keskusta, 90100 Oulu #10837695
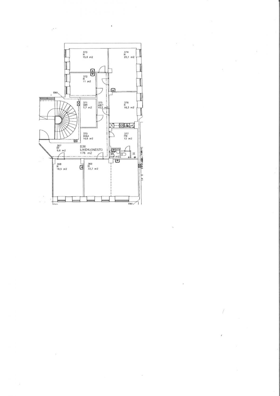
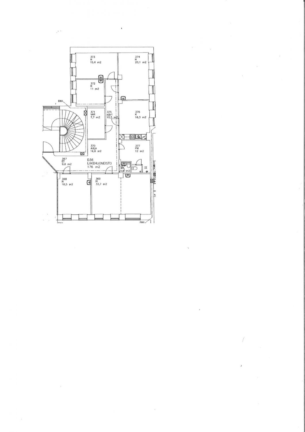
Upeassa Valkealinnan talosta vuokrattavana kolmannen kerroksen toimistokokonaisuus. Siistikuntoinen läpitalon huoneisto, joka taipuu moneen käyttöön. Talossa on hissi, joka takaa esteettömän kulun ja rapun alaovi on päiväsaikaan avoinna, jotta myös asiakkaiden on helppo kulkea tilaan. Tilat koostuvat viidestä toimistohuoneesta, joihin jokaiseen mahtuu useampi työpiste. Siisti keittiö, johon saa sijoitettua hyvän kokoisen neuvottelupöytä. Lisäksi kolme vessaa, suihku- ja pukutilat sekä varastohuone. Eteisen varrella on myös tilaa esimerkiksi asiakkaiden odotustilaksi. Vuokra 2640€/kk sisältää lämmityksen. Vesi ja käyttösähkö erilliskustannuksena. Heti vapaa!
Tilat koostuvat viidestä toimistohuoneesta, joihin jokaiseen mahtuu useampi työpiste. Siisti keittiö, johon saa sijoitettua hyvän kokoisen neuvottelupöytä. Lisäksi kolme vessaa, suihku- ja pukutilat sekä varastohuone. Eteisen varrella on myös tilaa esimerkiksi asiakkaiden odotustilaksi.
Vuokra 2640€/kk, sisältää lämmityksen. Vesi ja käyttösähkö erilliskustannuksena. Heti vapaa!.
OP Koti Pohjoinen Oy LKV
Toimitila- ja vuokravälitys
Lekatie 6
90140 OULU
Julia Hoikkala
Myyntineuvottelija, Toimitilat, LVV, Trad.
Näytä puhelinnumero
050 411 8747
