Vuokrataan varastotilat - Helsinki
Valokaari 10, Suutarila, 00750 Helsinki #10837679
Varasto-/toimisto-/näyttelytilaa Helsingin Suutarilassa.
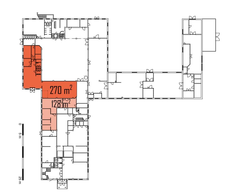
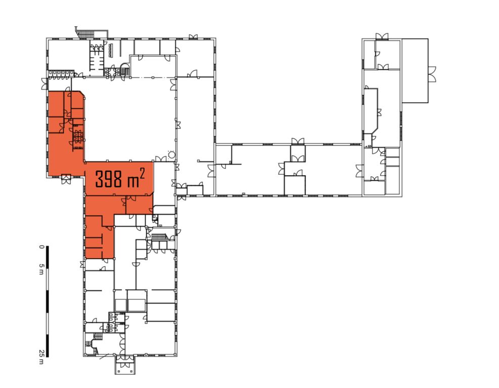
Tämä 398 m² monitoimitila sijaitsee kiinteistön katutasossa. Toimistotilassa on erillisiä huoneita sekä avointa tilaa, keittiö ja wc-tilat. Osassa huoneista on säilynyt upeita vanhoja ovia ja sormipaneeleja. Varastotilaan on kulkuyhteys myös nosto-oven (3 x 2,5 m) kautta pihalta. Toimitila sijoittuu rakennuksen kadun puoleiseen osaan, jonka julkisivu näkyy hienosti kadulle. Vieressä ovat pihan vinoparkkipaikat. Tila voidaan vuokrata myös kahdessa osassa (270 m² ja 128 m²) ks. pohjakuva.
Valokaari 10 on varasto-, tuotanto- ja toimistokiinteistö, joka sijaitsee lähellä Kehä III:sta Suutarilassa. Alueella on monipuolisesti palveluja ja hyvät kulkuyhteydet. Kiinteistön pihalla on hyvin pysäköintitilaa.
Kysy lisää numerosta 044 723 4700 tai info@bref.fi. Palvelumme on tilanhakijoille ilmainen.
Bureau Real Estate Finland Oy
Lars Sonckin kaari 16, 02600 Espoo
Näytä puhelinnumero
0447234700
Bureau Real Estate Finland Oy
https://www.bref.fi