Vuokrataan liiketilat - Oulu
Kasarmintie 5 Lh 1, Myllytulli, 90130 Oulu #10837647
Osoite
Kasarmintie 5 Lh 1, 90130 Oulu
Tilatyyppi
Liiketilaa
78 m2
Vuokra
1100,00 €/kk
Vuokraan sisältyy lämpö
Muuta
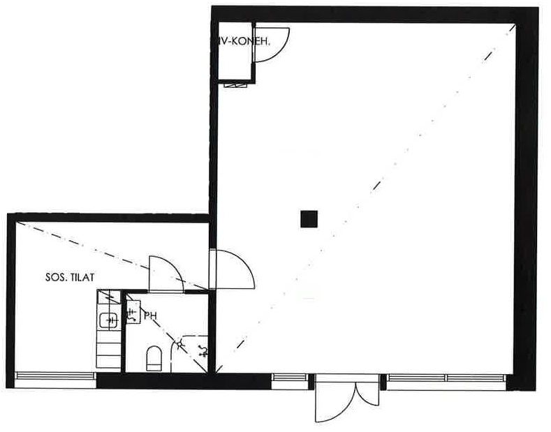
Vuokrataan Myllytullista Hupisaaren puistoalueen laidalta tyylikästä katutason liike-/toimistotilaa!
Tila koostuu isommasta avotilasta sekä tauko- ja sosiaalitiloista, tilassa on nykyaikainen varustelu. Taukotilassa on minikeittiö, jossa allas ja jääkaappi, mikrolle löytyy paikka ja minikeittiön vieressä lisäksi kaksi kaappia. Lattiamateriaalina on laminaatti, seinät on vaaleiksi maalatut. Tilavasta vessasta löytyy suihku. Varusteluun kuuluu myös koneellinen ilmanvaihto sekä DNA:n 10M laajakaistayhteys ja kaapelitelevisio, jotka sisältyvät vuokraan.
Tilaan on käynti Kasarmintien puolelta ja isot ikkunat mahdollistavat hyvän näkyvyyden vilkkaasti liikennöidyn kadun suuntaan. Mikäli tila ei tällaisenaan sovi tarpeeseen, niin tilaan on mahdollista tehdä muutoksia tarpeen mukaan.
Vuokra 1100 €/kk + alv. Vuokra sisältää lämmityksen ja laajakaistayhteyden.
Erilliskorvauksena vuokralainen vastaa vedestä kulutuksen mukaan ja tekee oman sähkösopimuksen.
Kysy tarvittaessa autopaikan saatavuudesta.
Tila vapatuu 1.12.2025.
Tarvittaessa tila vapautuu hyvin nopeallakin aikataululla, kysy lisää.
Ole yhteydessä ja sovitaan esittely!
Eikö tämä ole sopiva? Kysy muita vaihtoehtojamme!
Tila koostuu isommasta avotilasta sekä tauko- ja sosiaalitiloista, tilassa on nykyaikainen varustelu. Taukotilassa on minikeittiö, jossa allas ja jääkaappi, mikrolle löytyy paikka ja minikeittiön vieressä lisäksi kaksi kaappia. Lattiamateriaalina on laminaatti, seinät on vaaleiksi maalatut. Tilavasta vessasta löytyy suihku. Varusteluun kuuluu myös koneellinen ilmanvaihto sekä DNA:n 10M laajakaistayhteys ja kaapelitelevisio, jotka sisältyvät vuokraan.
Tilaan on käynti Kasarmintien puolelta ja isot ikkunat mahdollistavat hyvän näkyvyyden vilkkaasti liikennöidyn kadun suuntaan. Mikäli tila ei tällaisenaan sovi tarpeeseen, niin tilaan on mahdollista tehdä muutoksia tarpeen mukaan.
Vuokra 1100 €/kk + alv. Vuokra sisältää lämmityksen ja laajakaistayhteyden.
Erilliskorvauksena vuokralainen vastaa vedestä kulutuksen mukaan ja tekee oman sähkösopimuksen.
Kysy tarvittaessa autopaikan saatavuudesta.
Tila vapatuu 1.12.2025.
Tarvittaessa tila vapautuu hyvin nopeallakin aikataululla, kysy lisää.
Ole yhteydessä ja sovitaan esittely!
Eikö tämä ole sopiva? Kysy muita vaihtoehtojamme!
Vapautuu
01.12.2025
Rakennusvuosi
2016
Kerros
1
Energiatehokkuusluokka
H (ei luokitusta)
Ota yhteyttä
Kiinteistö-Tahkola Oy
Lumijoentie 1, 90400 Oulu
Näytä puhelinnumero
0207 480 250
Sami Kortesoja
Näytä puhelinnumero
045 896 4803
Pyydä lisätietoa
