Vuokrataan toimistotilat - Helsinki
Valimotie 13a 6.krs 28,5 m² toimistohuone, Valimotie 13a, Pitäjänmäki, 00380 Helsinki #10837629
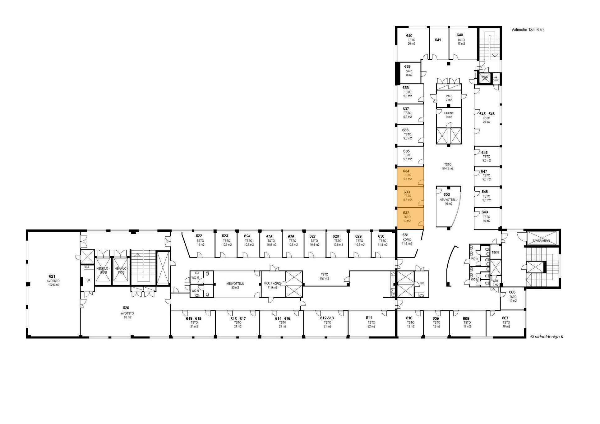
Pienemmistä huoneista yhdistetty isompi toimisto ylimmässä kerroksessa. Huone on lukittava ja vuokralaisen käytössä on Valimotie 13a yhteiset keittiö- ja taukotilat. Huoneesta on useampi ikkuna ulos ja mukavat näkymät Pitäjänmäen ylle.
Suunnittelemme mahdolliset remontit ja muutostyöt aina asiakaskohtaisesti vuokraneuvottelujen yhteydessä.
Valimo Centerin kaikkia vuokralaisia palvelee Valimotie 13a:ssa sijaitseva aulapalvelu, josta hoituu myös postien vastaanotto, edelleenlähetys sekä pakettipalvelut. Samasta rakennuksesta löydät talon oman – vuokralaisille suunnatun kuntosalin, jonne pääsee kulkuavaimella klo 5-21. Katutasossa runsaan lounaan arkipäivisin tarjoilee Ravintola Factory. Mikäli tarvetta on kokoustiloille, löytyy niitä joustavasti vuokrattavana aina 2-20:lle henkilölle.
Katso videoesittely Valimo Centeristä: https://youtu.be/W4-0X0CgEa0
Tästä kohteesta voit olla yhteydessä pääkaupunkiseudun vuokrauspäällikköömme Artoon.
Puh. 044 906 2226 / Arto Haavisto
- Valmistunut vuonna 1974, saneerattu 1996
- Pinta-ala: 17 236 m²
- Kerrosten lukumäärä: 6
- 2 tavarahissiä ja lastausalue parkkihallissa
- 3 henkilöhissiä
- Koneellinen jäähdytetty ilmanvaihto / huonekohtainen erillisjäähdytys
- Turvallista kulunvalvottua tilaa
- Autopaikat: 130 kpl autohalleissa ja katolla
- Sauna ja kuntosali
- Aulapalvelut
- Lounasravintola
Hissi
Nurmi-Yhtiöt Oy
Nurmi Kiinteistöt
Jousitie 7
20760 Piispanristi
puh.
Näytä puhelinnumero
044 906 2226
/ Arto Haavisto (pk-seutu)
puh.
Näytä puhelinnumero
040 624 0344
/ Ilias Niemi (Varsinais-Suomi)
