Vuokrataan toimistotilat - Helsinki
Panuntie 4, 00610 Helsinki #10837556
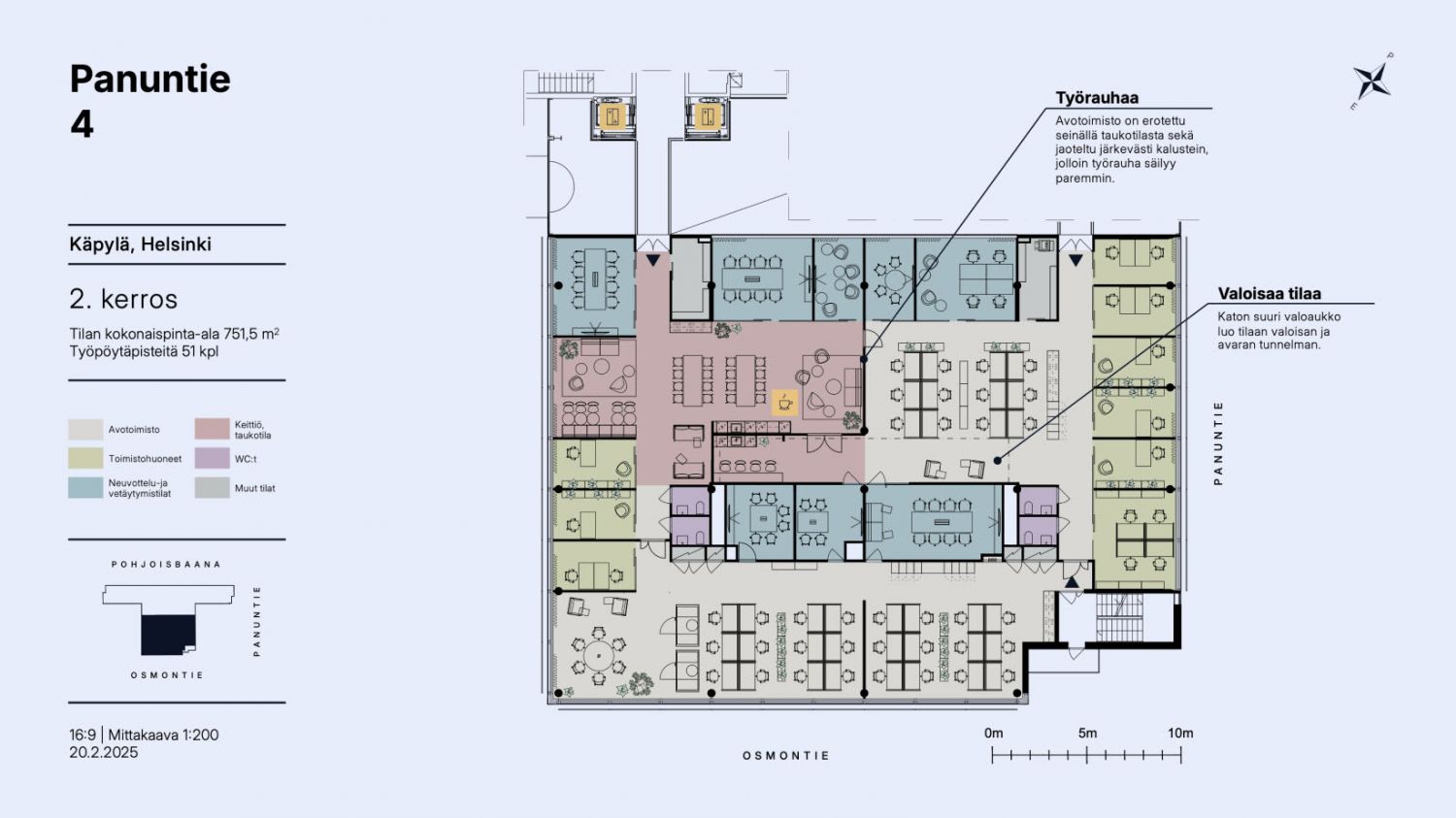
Vuokrattavissa valoisa toisen kerroksen toimistotila, joka suunnitellaan ja remontoidaan tulevan käyttäjän tarpeiden ja toiveiden pohjalta. Tila on myös mahdollista jakaa pienempiin 350,5 m² ja 401 m² osioihin tai vuokrata isompana kokonaisuutena yhdessä sen yläpuolella sijaitsevan 711,5 m² toimistotilan kanssa.
Osoite
Panuntie 4, 00610 Helsinki
Tilatyyppi
Toimistotilaa
751,5 m2
Tilajako
Jaettavissa
Voidaan vuokrata myös vain osittain
Kiinteistö
Panuntie 4 on moderni toimistotalo Helsingin Käpylässä. Kiinteistössä on aulapalvelu, lounasravintola ja neuvottelu- ja kokoustiloja. Kellarikerroksessa on kuntosali ja suihkutilat.
Sijainti
Toimistokiinteistö sijaitsee kätevästi Käpylän juna-aseman yhteydessä, joten paikalle on helppo saapua junalla tai bussilla. Oman auton saa myös helposti parkkiin pihalle tai parkkihalliin.
Pysäköinti
Parkkipaikkoja saatavilla.
Vapautuu
Kysy
Rakennusvuosi
2002
Kerros
2
Energiatehokkuusluokka
D
Jaettavissa
Ota yhteyttä
Moodi Toimitilat – eQ Kiinteistöt
Aleksanterinkatu 19, 00100 Helsinki
Näytä puhelinnumero
(09) 6817 8777
Mari Ryyppö
Vuokrausvastaava
Näytä puhelinnumero
+358 50 513 5400
Pyydä lisätietoa
