Vuokrataan - Espoo
Sinimäentie 10, Mankkaa, 02630 Espoo #10837376
Modernia ja muuntojoustavaa toimitilaa Espoon Sinimäentiellä - ILMAISET PARKKIPAIKAT!
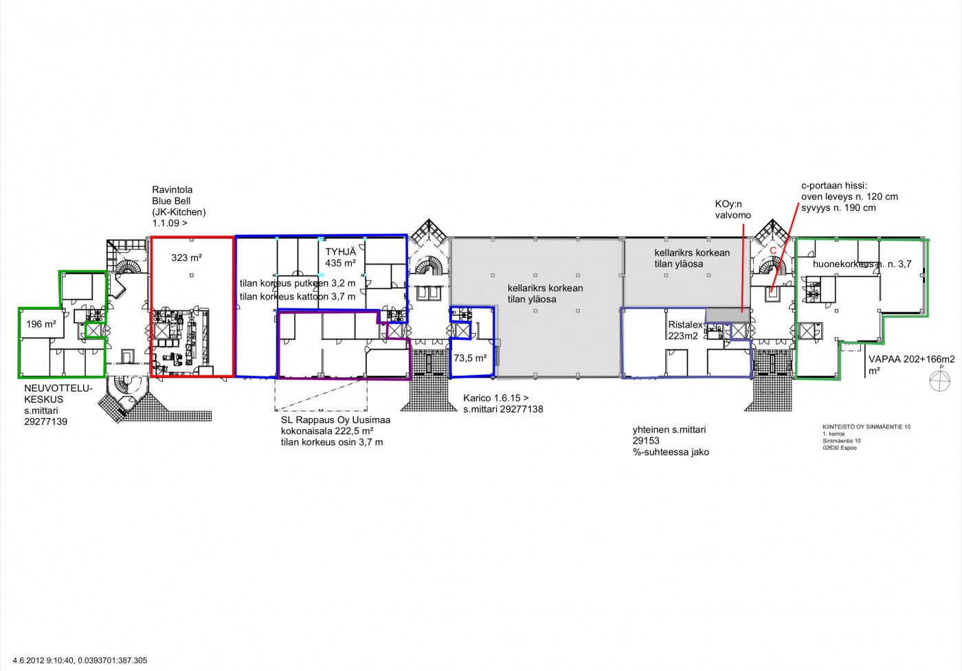
Espoon Sinimäentie 10 tarjoaa erinomaiset puitteet varasto- ja tuotantotoiminnalle. Vuokrattavana on 166 m2 ja 202 m2 tilat (pohjakuvassa oikeassa päädyssä), jotka voidaan tarvittaessa yhdistää avaraksi 368 m2 kokonaisuudeksi. Noin neljän metrin huonekorkeus luo joustavuutta erilaisiin käyttötarkoituksiin.
Kiinteistö sijaitsee logistisesti erinomaisella paikalla Turunväylän ja Kehä I:n tuntumassa, mikä takaa helpon saavutettavuuden niin omalla autolla kuin kuljetuskalustollakin. Pysäköintipaikkoja kiinteistön paikoitusalueella on runsaasti, peräti 300 kappaletta ja alueen palvelut täydentävät kokonaisuutta. Kiinteistön oma lounasravintola tarjoaa vaivattoman ratkaisun työpäivän ruokailuun.
ILMAISET PARKKIPAIKAT ja kuntosali vuokralaisten henkilökunnan käytössä!
Kiinteistön vuokralaisille tarjotaan erinomaiset lisäedut ilman lisäkuluja:
🚗 Maksuttomat pysäköintipaikat – sujuva saapuminen joka päivä
💪 Kuntosali vapaassa käytössä – hyvinvointia ja jaksamista työpäivän lomassa
Panostetaan viihtyisään ja toimivaan työympäristöön, jossa yrityksesi henkilöstö viihtyy ja voi hyvin. Nämä edut sisältyvät vuokraan – ilman piilokuluja.
Jos etsit toimivaa, hyvin saavutettavissa olevaa ja käytännöllistä tilaa yrityksellesi, tämä kohde on tutustumisen arvoinen.
Kysy lisää: jouko.raitanen@rhg.fi/0504695444
RHG Real Estate
Hämeenkatu 2 B20, 20500 Turku
Näytä puhelinnumero
020 734 4020
Jouko Raitanen
Näytä puhelinnumero
050 469 5444
