Vuokrataan toimistotilat - Helsinki
Lautatarhankatu 6, Kalasatama, 00580 Helsinki #10837317
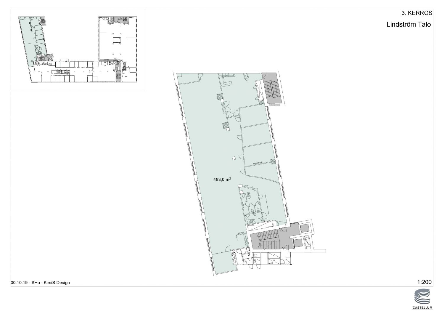
Vuokrataan industrial-henkisestä Lindström Talosta kolmannen kerroksen avara monitilatoimisto. Avotilassa on useita erikokoisia lasiseinäisiä huoneita, keittiö, wc:t. Nykyaikainen business park sijaitsee erinomaisella paikalla Kalasatamassa. Kalasataman alue on voimakkaasti lähivuosina kehittyvä alue. Kalasataman rakentumisen myötä kaupungin sisäinen itä-länsi tasapaino muuttuu, ja Ruoholahti saa väistämättä haastajansa. Alueen erinomaiset tie- ja julkiset liikenneyhteydet varmistavat helpon saavutettavuuden ja vaivattomat työmatkat. Pysäköinti saatavuuden mukaan joko pysäköintihallissa, sisäpihalla tai alueen julkisilla pysäköintipaikoilla Business Parkin asiakkaiden liiketoimintaa ja henkilöstöä palvelevat toiminnot, sisältäen muun muassa: - Viihtyisän lounasravintola Carl Augustin - Aulapalvelut oheistoimintoineen - Korkeatasoiset kokous- ja neuvottelutilat varusteineen - Autonpesun - Hierontapalvelun - Klubiauton (talon sisäisen autonvuokrauksen) - Kuntosalin yhteistyössä naapuritalon kanssa Metroasemalle on noin 200 metriä, josta pääsee metrolla Helsingin keskustaan noin kuudessa minuutissa. Raitiovaunu- ja linja-autopysäkeille on noin 150-200 metriä, linjasta riippuen. Itä- ja Lahdenväylät n. 1 minuutin ajomatkan päässä, ja Helsinki-Vantaa lentokentälle noin 25 minuutin ajomatka Kiinteistö on vuonna 2003 täysin remontoitu ja modernisoitu toimistotalo, jossa jokainen tila on varustettu jäähdytyksellä ja nykyaikaisella kuitu- ja CAT 6 datakaapeloinnilla.
