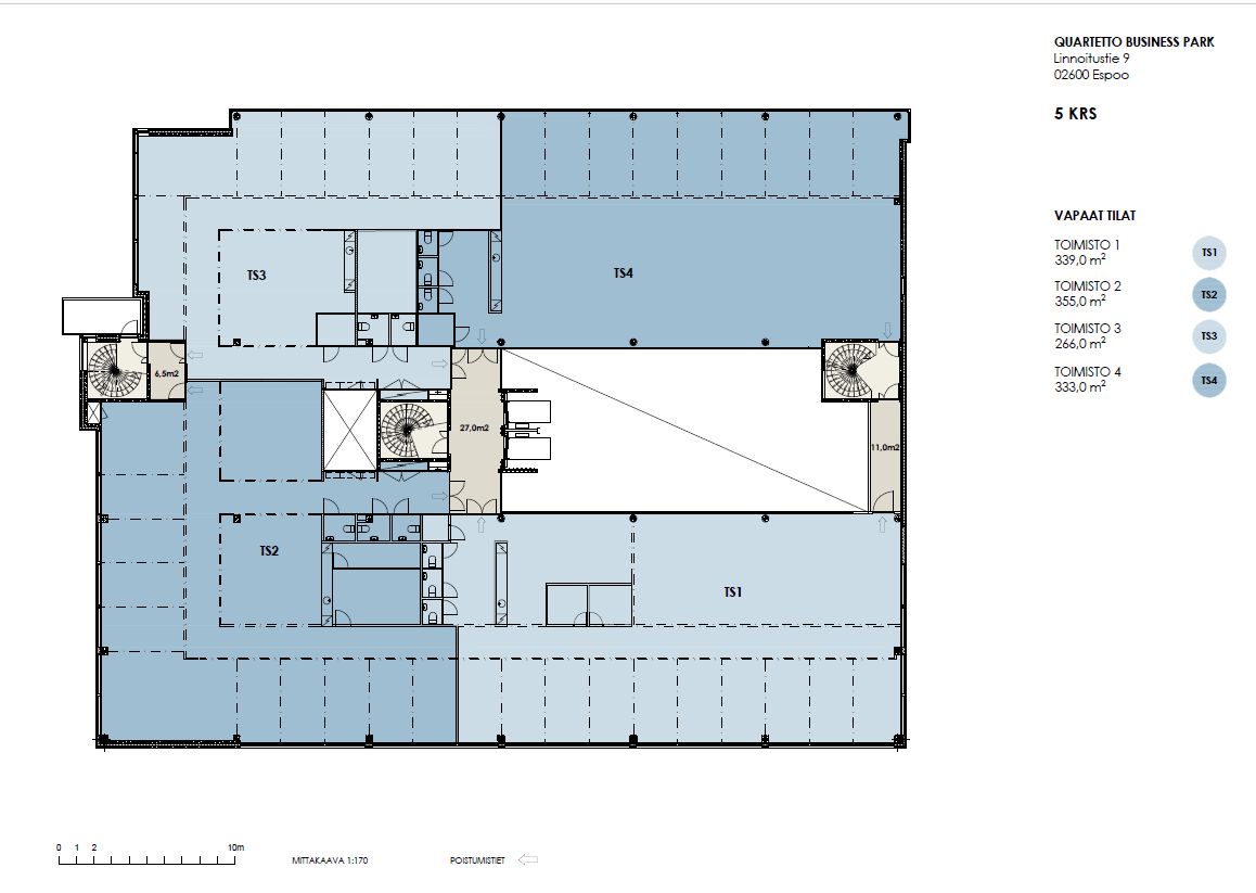
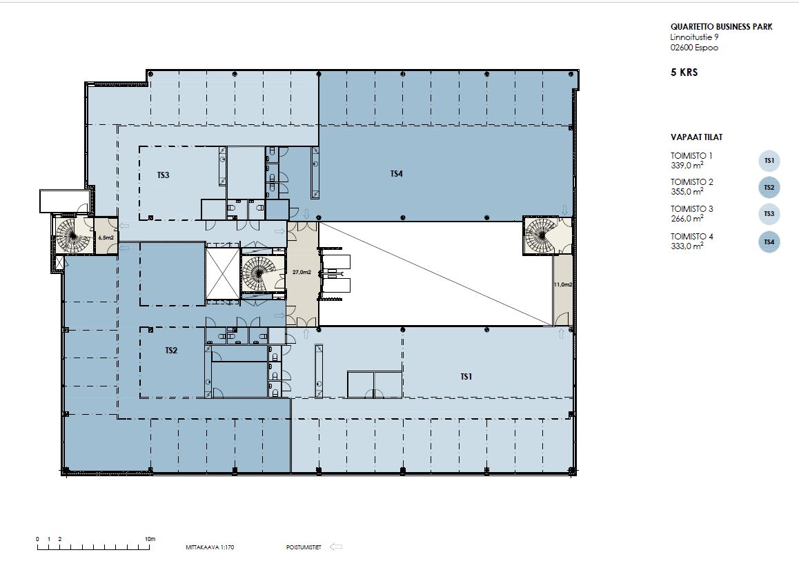
Vuokrataan toimistotilat - Espoo
Linnoitustie 9, Leppävaara, 02600 Espoo #10837273
Quartetto Business Parkin Fuuga-talossa modernia ja tasokasta 2000-luvun toimistotilaa kerroksissa 2-5. Huippusijainti Espoon Leppävaarassa, raidejokeripysäkki vieressä. Fuugassa on kaikki, mitä menestykselliseen liiketoimintaan tarvitaan. Quartetto-yrityspuisto tarjoaa kattavat palvelut vaativankin yrityksen makuun. Talossa toimii muun muassa lounasravintola, kahvio sekä aulapalvelu. Rakennuksesta löytyy myös liikunta- ja terveyspalveluita.
Quartetto tarjoaa nykyaikaiset toimitilat keskeiseltä paikalta kasvavasta ja kehittyvästä Leppävaarasta. Alueen palvelut ovat erinomaiset ja esimerkiksi kauppakeskus Sello liikkeineen ja ravintoloineen sijaitsee ihan vieressä. Paikalle pääsee kätevästi julkisilla yhteyksillä, kuten junilla ja busseilla. Leppävaaran juna-asema on lyhyen kävelymatkan päässä ja autolla pujahtaa hetkessä Kehä I:lle ja Turunväylälle. Kiinteistössä on oma parkkihalli.
