Vuokrataan toimistotilat - Helsinki
Itämerenkatu 1, Ruoholahti, 00180 Helsinki #10837271
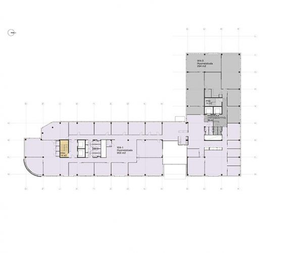
Tyylikästä toimistotilaa neljännessä kerroksessa Ruoholahdessa.
Vilkkaassa, urbaanissa Ruoholahdessa, Länsisataman läheisyydessä sijaitseva toimistotila Westport on Helsingin läntinen portti maailmalle. Westportiin on helppo saapua julkisilla kulkuneuvoilla, autolla tai Baanaa pitkin pyörällä.
Modernin Westportin tilat ovat tyylikkäät ja tämän päivän vaatimuksia vastaavat. Tilojen yleisilme on kauttaaltaan valoisa ja raikas. Joustavat toimistotilat soveltuvat niin avo- kuin huonetoimistoksi toivomustesi mukaisesti.
Talossa vuokralaisia palvelevat kaksi 12 hengen ja kuusi neljän hengen neuvottelutilaa. Lisäksi käytettävissä on uusi 20 hengen studio, joka taipuu vaikkapa hybriditapahtumien kisakatsomoksi tai kokoustilaksi. Westportista löytyy myös nykyaikainen kuntosali sekä viihtyisät ja avarat sauna- ja kokoustilat. Katutasossa ravintola Gresa tarjoilee edullista, laadukasta lounasta. Gresa hoitaa myös kokoustarjoilut Westportin toimistoihin ja kokoustiloihin.
