Vuokrataan toimistotilat - Helsinki
Mikonkatu 4, Keskusta, 00100 Helsinki #10837230
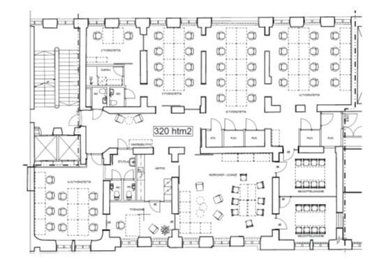
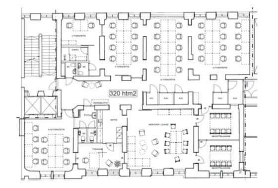
Vapaata toimistotilaa 3. kerroksessa.
Näyttävä, korkea ja valoisa kokonaisuus huippusijainnilla.
Historiallisesti arvokas kiinteistö Gaselli-korttelissa ydinkeskustassa.
Kiinteistö Oy Gaselli on vuonna 1892 valmistunut K.A. Wreden suunnittelema ja Julius Tallbergin rakennuttama arvokiinteistö. Kiinteistö sijaitsee Helsingin ydinkeskustan parhaimmalla paikalla Gaselli-korttelissa, Aleksanterinkadun varrella. Parannustyöt on saatu valmiiksi ja ne on tehty kiinteistön arkkitehtuuria ja arvokasta historiaa kunnioittaen. Uudet toimistotilat tunnelmallisessa ja arvokkaassa rakennuksessa ovat vertaansa vailla.
Aleksanterinkadun ja Mikonkadun kulmaan sijoittuvassa kiinteistössä on laadukkaita toimistotiloja monen kokoisille yrityksille. Kohteessa on tehokkaat tilaratkaisut, jotka voi joustavasti hyödyntää monitilaympäristönä. Tiloissa on koneellinen ilmanvaihto ja jäähdytys.
Lähin autoilijoita palveleva pysäköintihalli sijaitsee Kluuvissa, sisäänajo Kaisaniemestä tai Fabianinkadulta. Julkisen liikenteen yhteydet ovat vain lyhyen kävelymatkan päässä.
