Vuokrataan toimistotilat - Helsinki
Tammasaarenkatu 7, Ruoholahti, 00180 Helsinki #10837224
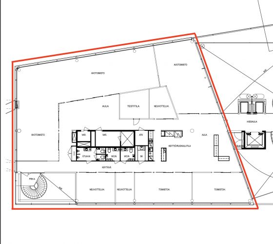
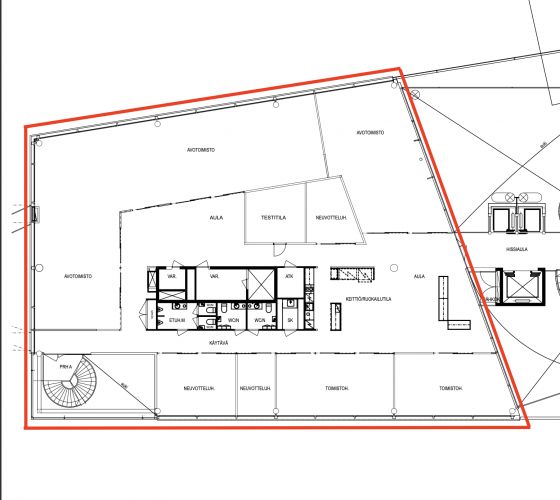
Toisen kerroksen toimisto . HTC Helsingissä on tarjolla vapaita toimitiloja merellisessä maisemassa Helsingin keskustan välittömässä läheisyydessä. Tiloissa on nykyaikainen talotekniikka ja tilat ovat siten myös joustavasti muunneltavissa vuokralaisen tarpeen mukaisiksi Tarjolla Business Park-palvelut
Osoite
Tammasaarenkatu 7, 00180 Helsinki
Tilatyyppi
Toimistotilaa
571 m2
Kulkuyhteydet
HTC Helsinki sijaitsee Helsingin Ruoholahdessa hyvien kulkuyhteyksien päässä. Tammasaarenkatu 1-7 00180 Helsinki Ruoholahteen pääsee kätevästi metrolla, bussilla tai autolla.
Vapautuu
Kysy
Kerros
4
Liitetiedostot
Ota yhteyttä
Pyydä lisätietoa
